Аренда помещений для бизнеса

Białystok

3 000 PLN
46 PLN
65 m2
аренда
рынок: вторичный рынок
Пол: 0
Меблированно: Нет
Состояние отделки: Готовый
Umiejscowienie lokalu: В таунхаусе
Предназначен для: Коммерческая, Коммерческая, Кейтеринг
Id Oferty: 7376

Описание

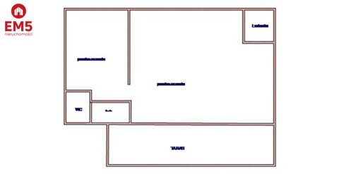
Przedstawiam lokal na wynajem pod szerokie spektrum działalności. Przy ruchliwej ulicy zlokalizowany w ścisłym centrum miasta. Lokal ustawny, w dobrym standardzie, łatwy dostęp do lokalu z ulicy. Na powierzchnię użytkową składa się pomieszczenie ogólnie użytkowe i pomieszczenie socjalne. Lokal ma dwie wyposażone łazienki. Powierzchnia użytkowa wynosi 65 m2. Lokal idealny pod działalność gospodarczą. Opłaty: prąd, woda, ogrzewanie według zużycia. Do lokalu przynależy duży taras, który można wykorzystać pod potrzeby.
Serdecznie polecam nieruchomość oraz zapraszam na prezentacje.


:: Oferta wysłana z programu mediaRent (media-rent.eu) ::

дополнительная информация

электричество
вода
интернет
канализация
обогрев

Другие предложения рекламодателя

Biuro Centrum
doradca ds. nieruchomości
Я соглашаюсь на обработку моих личных данных EM 5 в целях, связанных с брокерской деятельностью в сфере недвижимости, в то же время я подтверждаю, что мне сообщили, что у меня будет доступ к содержанию моих данных для редактирования или удаления их.