Haus zu verkaufen

Ogrodniczki

890 000 PLN
1 365 PLN
652,2 m2
Verkauf
Markt: Sekundärmarkt
Bebaungsart: Freistehendes Haus
Baumaterial: Ziegel
Zustand: Leben
Baujahr: 1995
Anzahl von Etagen: 3 Stockwerke und mehr
Anzahl der Zimmer: 9
Grundstück: 1914 m2
Dach: Nein
Art des Daches: Blatt
Fenster: Kunststoff
Lokalisierung: Stadt
frei ab: 2026-02-05
ID anbieten: 124
Umzäung: Beton
Zugang/Zufahrt: Asphalt

Beschreibung

Większość atrakcyjnych nieruchomości w tej okolicy znika zanim trafia na portale. Dlatego pracujemy również na ofertach dostępnych tylko dla naszych klientów.

Przedstawiam Państwu dom położony w miejscowości Ogrodniczki. Nieruchomość ma powierzchnię ponad 650 m2 z czego 489 m2 stanowi powierzchnię użytkową. Dom posiada 3 piętra oraz poddasze użytkowe. Każde piętro posiada osobny licznik energii elektrycznej co pozwala na podzielenie domu na osobne segmenty. Do budynku zostało również wykonane przyłącze gazowe oraz kanalizacja. Wykonany z wysokiej jakości materiałów, dach pokryty dachówką ceramiczną firmy Winderberger, wzmacniane szyby w oknach. Budynek ocieplony 20mm styropianem oraz wełną. Elewacja budynku do ewentualnego odświeżenia. Istnieje możliwość zamontowania kominka oraz windy dla osób z niepełnosprawnością. Niewątpliwym atutem jest również podsypana i ogrodzona działka w kształcie prostokąta o powierzchni 1914m2.


- Poziom 0: garaż dwustanowiskowy, kotłownia, pomieszczenie na sauna, pomieszczenie na basen, pomieszczenie gospodarcze
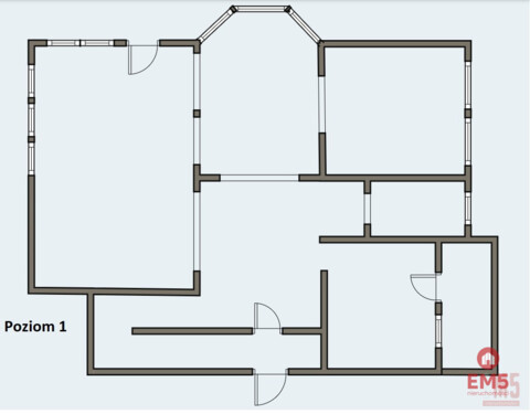
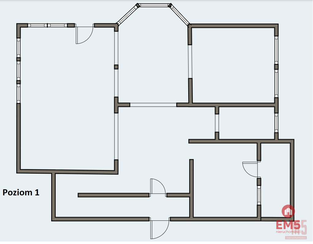
- Poziom 1: salon, jadalnia, kuchnia, łazienka, pokój
- Poziom 2: 4 pokoje, łazienka
- Poddasze: 3 pokoje, łazienka


Nieruchomość doskonale nadaje się na inwestycje np. przedszkole, pensjonat, hotel pracowniczy itp. lub jako oaza spokoju dla rodziny z dziećmi.
Zapraszam do kontaktu i na prezentacje.



Jeśli ta nieruchomość nie spełnia wszystkich oczekiwań - skontaktuj się z nami. Pokażemy również inne oferty dopasowane do Twoich potrzeb, w tym takie, które nie są jeszcze publikowane.

Zusätzliche Informationen

Strom
Wasser
Gas
Kanalisation
Keller
Garage

Andere Angebote des Werbetreibenden

Biuro Centrum
Menadżer
Ich stimme der Verarbeitung meiner personenbezogenen Daten durch EM 5 für die Zwecke des Immobilienmaklergeschäfts zu und bestätige gleichzeitig, dass ich darüber informiert wurde, dass ich Zugang zum Inhalt meiner Daten habe, um diese zu bearbeiten oder zu löschen.