Wohnung zu verkaufen
Białystok, Przydworcowe
Beschreibung
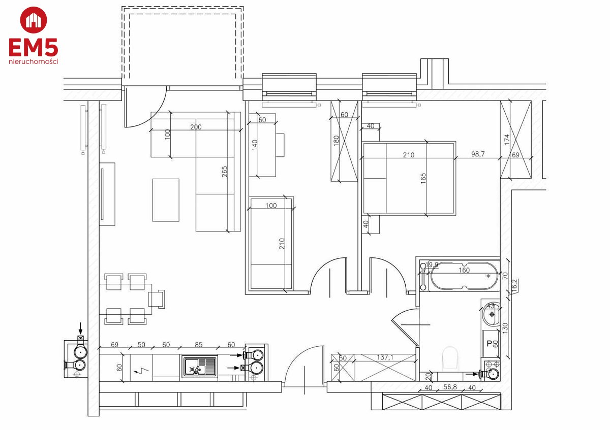
Zapraszam do zapoznania się z ofertą sprzedaży stylowego i eleganckiego mieszkania 3-pokojowego o powierzchni 54m2, położonego na osiedlu Przydworcowe, zaledwie kilka minut od centrum Białegostoku. 
Opis mieszkania:
- Stylowy salon z aneksem kuchennym, zaprojektowany z myślą o wygodzie i estetyce, z wyjściem na prywatny ogródek o powierzchni 17 m2, idealny na poranną kawę czy wieczorny relaks,
- Dwie przestronne i funkcjonalne sypialnie, które zapewniają komfort i prywatność,
- Przestronna łazienka, wykończona z dbałością o detale i wysokiej jakości materiałami,
- Korytarz z pojemną zabudową, zapewniający dodatkowe miejsce do przechowywania.
Dodatkowe atuty:
Mieszkanie znajduje się na parterze, co dodatkowo podkreśla jego wyjątkowość - prywatny ogródek daje poczucie spokoju i kontaktu z naturą, mimo bliskości centrum miasta. Do mieszkania przynależy miejsce parkingowe w podziemnym garażu (dostępne za dodatkową opłatą 45 000 zł), co jest dużym udogodnieniem w tej lokalizacji. Osiedle Przydworcowe to idealne miejsce dla osób ceniących bliskość udogodnień miejskich. W najbliższej okolicy znajdują się sklepy, apteki, szkoły, przedszkola, komunikacja miejska oraz wszystkie potrzebne usługi. To doskonały wybór dla osób szukających połączenia komfortu z doskonałą lokalizacją. Mieszkanie sprawdzi się idealnie dla rodzin szukających stylowego, nowoczesnego lokum, a także jako pewna i dochodowa inwestycja na wynajem.
Zapraszam do kontaktu i na prezentację - przekonaj się, jak wiele ma do zaoferowania to wyjątkowe mieszkanie!
 
:: Oferta wysłana z programu mediaRent (media-rent.eu) ::
 
                                 
                                 
                                 
                                 
                                 
                                 
                                 
                                 
                                 
                                 
                                 
                                 
                                 
                                 
                                                 
                                                 
                                                