Geschäftsräume zur Miete

Białystok, Marczuk

13 700 PLN
47 PLN
290 m2
Miete
Markt: Sekundärmarkt
Boden: 0
Möbliert: Nicht
Baujahr: 2024
Verwendungszweck: Kommerziell
Id Oferty: 715

Beschreibung

Większość atrakcyjnych nieruchomości w tej okolicy znika zanim trafia na portale. Dlatego pracujemy również na ofertach dostępnych tylko dla naszych klientów.

Zapraszam do zapoznania się z ofertą wynajmu hali wraz z powierzchnią biurową i zlokalizowaną na osiedlu Marczuk w Białymstoku. Ta część obiektu została zaprojektowana jako serwis samochodowy, ale istnieje możliwość adaptacji pod inną działalność, preferowane: fitness club, zajęcia ruchowe itp. Oferowana powierzchnia jest częścią większego kompleksu usługowego z własnym dużym parkingiem.

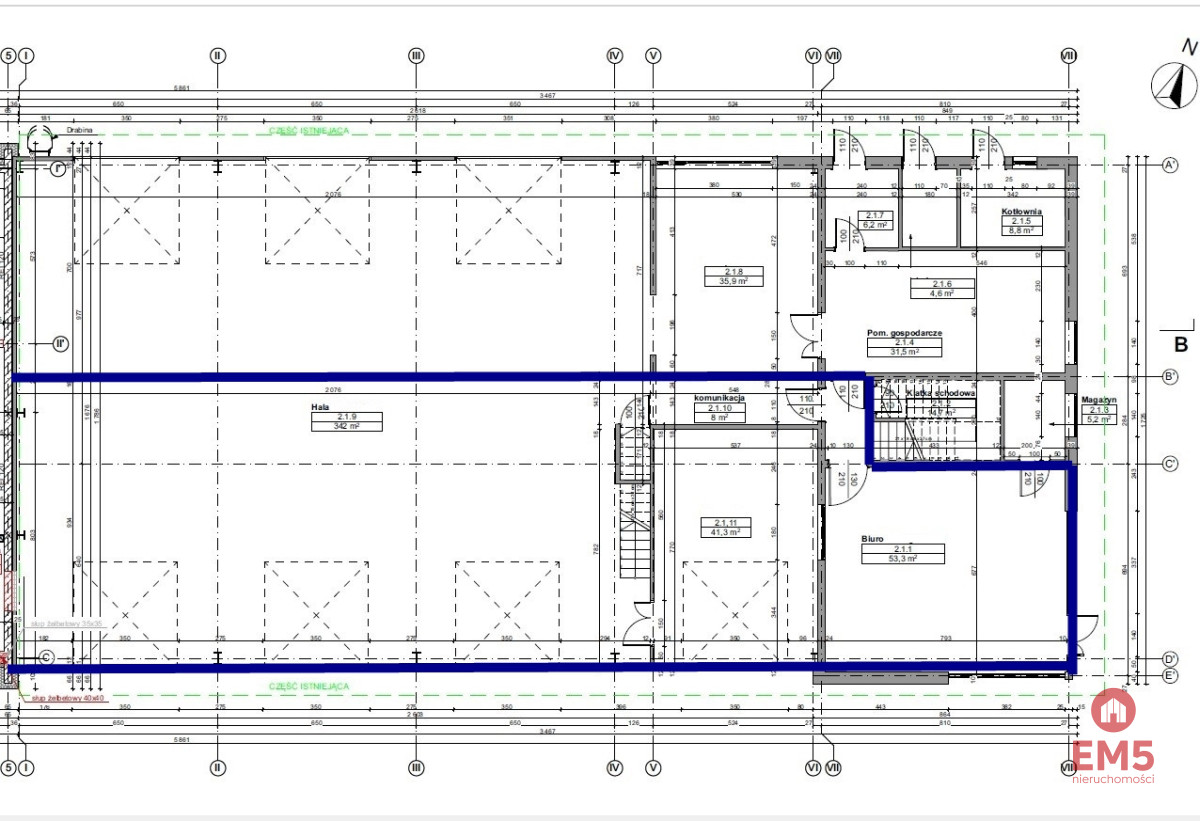
Powierzchnia całkowita wynosi ok 290 m2:


  • sala główna    187 m2

  • sala mniejsza   41 m2

  • komunikacja     10 m2

  • biuro                 53 m3


- powierzchnia ogrzewana
- wysokość hali głównej 5 m
- 4 bramy o wysokości 4 m
- epoksydowa posadzka niepylna
- przeznaczenie: fitness, rekreacja
- ogrodzony, monitorowany, bezpieczny teren
- wszystkie media (prąd, woda, internet, siła )

Istnieje możliwość wydzielenia części socjalnej/sanitarnej - wg. potrzeb

Czynsz najmu wynosi 27 000,00 + VAT. Media płatne w/g zużycia.



Jeśli ta nieruchomość nie spełnia wszystkich oczekiwań - skontaktuj się z nami. Pokażemy również inne oferty dopasowane do Twoich potrzeb, w tym takie, które nie są jeszcze publikowane.

Zusätzliche Informationen

Strom
Wasser
Gas
Internet
Kanalisation
Parking
Klimaanlage
Heizung
Gegensprechanlage / Video
Überwachung / Schutz
Alarmsystem

Andere Angebote des Werbetreibenden

Biuro Centrum
Ekspert rynku nieruchomości
Ich stimme der Verarbeitung meiner personenbezogenen Daten durch EM 5 für die Zwecke des Immobilienmaklergeschäfts zu und bestätige gleichzeitig, dass ich darüber informiert wurde, dass ich Zugang zum Inhalt meiner Daten habe, um diese zu bearbeiten oder zu löschen.