Wohnung zu verkaufen
Białystok, Wygoda
Beschreibung
Przedstawiam Państwu na sprzedaż segment z ogródkiem w stanie deweloperskim, zlokalizowany na atrakcyjnym osiedlu Bagnówka w Białymstoku.
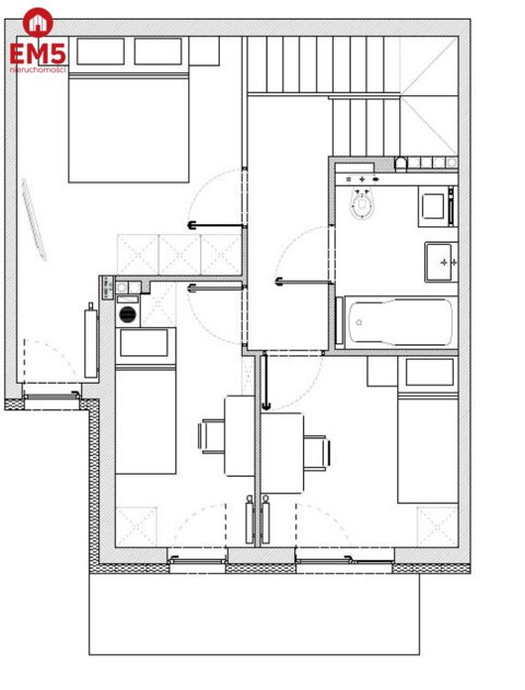
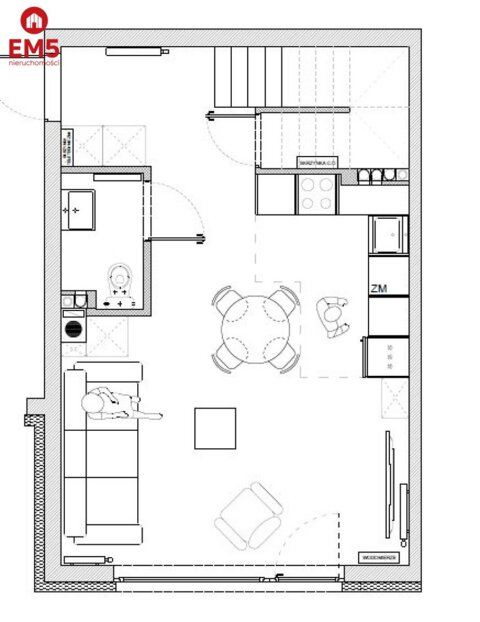
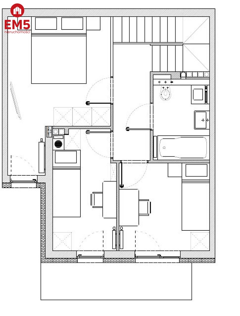
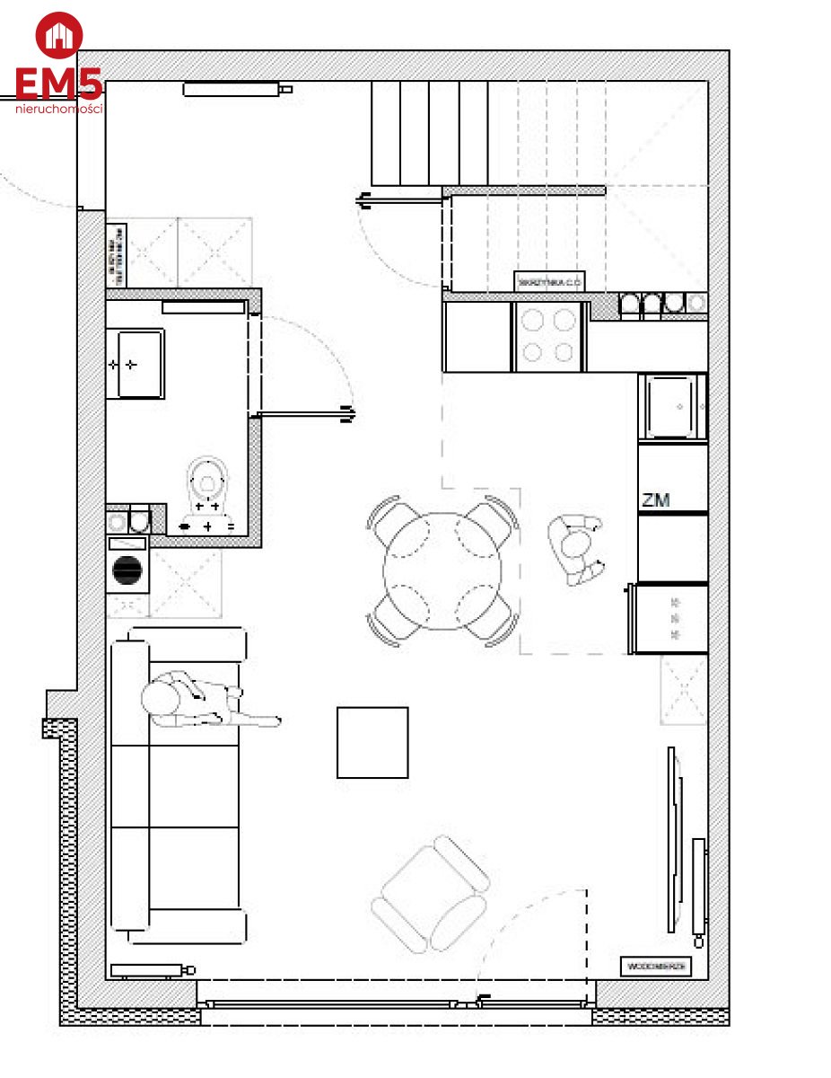
Na powierzchnię 77,42m2 składa się:
Parter: salon z aneksem kuchennym, spiżarnia, wc,
Piętro: 3 oddzielne sypialnie, łazienka.
Nowoczesna architektura, widne i ustawne pomieszczenia. Istnieje możliwość zainstalowania kominka. Niskie koszty utrzymania. Wszystkie media miejskie, brak czynszu. Mieszkanie posiada balkon o pow, 5,53m2, z którego roztacza się widok na okolicę. Dodatkowo do mieszkania przynależy ogródek o powierzchni 36 m2, który stanowi idealne miejsce na poranną kawę czy relaks po pracy. Nieruchomość położona jest w spokojnej okolicy, z dala od miejskiego zgiełku. W pobliżu sklepy, szkoły, przystanki komunikacji miejskiej. Idealna propozycja dla osób ceniących sobie spokój i kontakt z naturą. Do centrum miasta zaledwie 8 km. Mieszkanie gotowe do oddania. Istnieje możliwość wykończenia "pod klucz".
 
:: Oferta wysłana z programu mediaRent (media-rent.eu) ::
 
                                 
                                 
                                 
                                 
                                 
                                 
                                 
                                 
                                 
                                                 
                                                 
                                                