Haus zu verkaufen

Ogrodniczki

890 000 PLN
1 365 PLN
652,2 m2
Verkauf
Markt: Sekundärmarkt
Bebaungsart: Freistehendes Haus
Baumaterial: Andere
Zustand: Erledigt und abgeschlossen
Baujahr: 1995
Anzahl von Etagen: 3 Stockwerke und mehr
Anzahl der Zimmer: 9
Grundstück: 1914 m2
Dach: Schräglage
Poddasze: Verwendbar
Art des Daches: Blatt
Fenster: Kunststoff
Lokalisierung: Stadt
frei ab: 2024-02-12
Wysokość czynszu: 500 PLN
ID anbieten: 7553
Umzäung: Mauerwerk, Raster

Beschreibung

Przedstawiam Państwu dom położony w miejscowości Ogrodniczki. Nieruchomość ma powierzchnię ponad 650 m2 z czego 489 m2 stanowi powierzchnię użytkową. Dom posiada 3 piętra oraz poddasze użytkowe. Każde piętro posiada osobny licznik energii elektrycznej co pozwala na podzielenie domu na osobne segmenty. Do budynku zostało również wykonane przyłącze gazowe oraz kanalizacja. Wykonany z wysokiej jakości materiałów, dach pokryty dachówką ceramiczną firmy Winderberger, wzmacniane szyby w oknach. Budynek ocieplony 20mm styropianem oraz wełną. Elewacja budynku do ewentualnego odświeżenia. Istnieje możliwość zamontowania kominka oraz windy dla osób z niepełnosprawnością. Niewątpliwym atutem jest również podsypana i ogrodzona działka w kształcie prostokąta o powierzchni 1914m2.
- Poziom 0: garaż dwustanowiskowy, kotłownia, pomieszczenie na sauna, pomieszczenie na basen, pomieszczenie gospodarcze
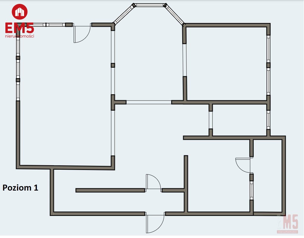
- Poziom 1: salon, jadalnia, kuchnia, łazienka, pokój
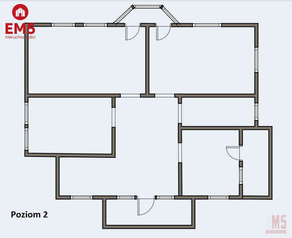
- Poziom 2: 4 pokoje, łazienka
- Poddasze: 3 pokoje, łazienka
Nieruchomość doskonale nadaje się na inwestycje np. przedszkole, pensjonat, hotel pracowniczy itp. lub jako oaza spokoju dla rodziny z dziećmi.
Zapraszam do kontaktu i na prezentacje.

:: Oferta wysłana z programu mediaRent (media-rent.eu) ::

Zusätzliche Informationen

Strom
Wasser
Telefon
Kanalisation
Keller
Dachgeschoss
Garage
Internet

Andere Angebote des Werbetreibenden

Biuro Centrum
Menadżer
Ich stimme der Verarbeitung meiner personenbezogenen Daten durch EM 5 für die Zwecke des Immobilienmaklergeschäfts zu und bestätige gleichzeitig, dass ich darüber informiert wurde, dass ich Zugang zum Inhalt meiner Daten habe, um diese zu bearbeiten oder zu löschen.