Wohnung zu verkaufen

Białystok, Centrum

395 000 PLN
8 229 PLN
48 m2
Verkauf
Markt: Sekundärmarkt
Bebaungsart: Einheit
Baumaterial: Andere
Anzahl von Etagen: 6
Boden: 3
Anzahl der Zimmer: 2
Baujahr: 1960
Zustand der Fertigstellung: Leben
Fenster: Kunststoff
Möbliert: Ja
Czynsz: 800 PLN
ID anbieten: 8107

Beschreibung

Mieszkaie jest fazie rezerwacji.
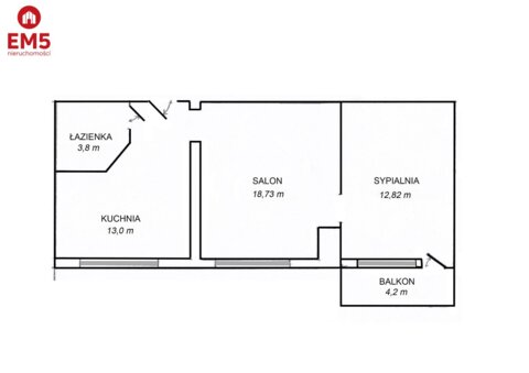
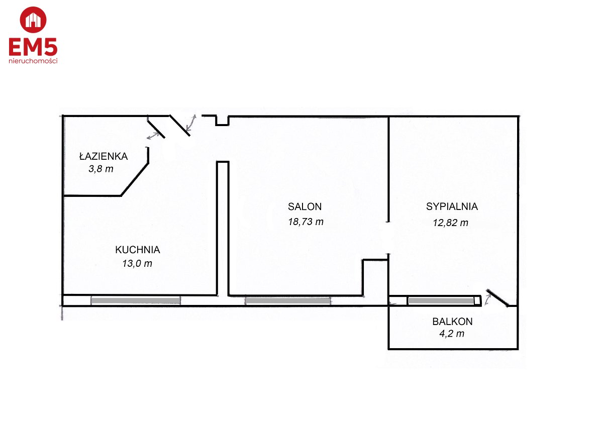
Przedstawiam państwu na sprzedaż komfortowe, 2-pokojowe mieszkanie o powierzchni 48 m2, z klimatyzacją, widokiem na zieleń i dużym balkonem, zlokalizowane w spokojnej okolicy. To idealna propozycja dla osób ceniących sobie komfort i funkcjonalność.
Układ mieszkania:
- Salon z widokiem na drzewa,
- Sypialnia z wyjściem na duży balkon,
- Oddzielna, jasna kuchnia,
- Łazienka,
- Przedpokój.
Mieszkanie jest przestronne, a podłogi zdobi naturalny, bukowy parkiet, który dodaje wnętrzu ciepła i elegancji. Ogromnym udogodnieniem, szczególnie w upalne dni, jest zainstalowana klimatyzacja. Do dyspozycji mieszkańców jest również winda oraz piwnica, co zwiększa komfort codziennego użytkowania. Lokalizacja jest doskonała - cicha i spokojna, a jednocześnie blisko wszystkiego, czego potrzebujesz tj: sklepy, lokalne ryneczki, przychodnia, żłobki, przedszkola, szkoły, przystanki komunikacji miejskiej, przystanki autobusowe, blisko uczelnie wyższe. Centrum na wyciągnięcie ręki.
Zapraszam do kontaktu i na prezentacje!

:: Oferta wysłana z programu mediaRent (media-rent.eu) ::

Zusätzliche Informationen

Balkon
Keller
Aufzug
Separate Küche
Klimaanlage
Gegensprechanlage / Video

Andere Angebote des Werbetreibenden

Biuro Centrum
Menadżer
Ich stimme der Verarbeitung meiner personenbezogenen Daten durch EM 5 für die Zwecke des Immobilienmaklergeschäfts zu und bestätige gleichzeitig, dass ich darüber informiert wurde, dass ich Zugang zum Inhalt meiner Daten habe, um diese zu bearbeiten oder zu löschen.