Wohnung zu verkaufen

Białystok, Piasta II

399 000 PLN
9 279 PLN
43 m2
Verkauf
Markt: Sekundärmarkt
Bebaungsart: Einheit
Baumaterial: Andere
Anzahl von Etagen: 4
Boden: 3
Anzahl der Zimmer: 2
Baujahr: 1970
Zustand der Fertigstellung: Leben
Fenster: Kunststoff
Heizung: Urban
Möbliert: Ja
Czynsz: 550 PLN
ID anbieten: 8612

Beschreibung

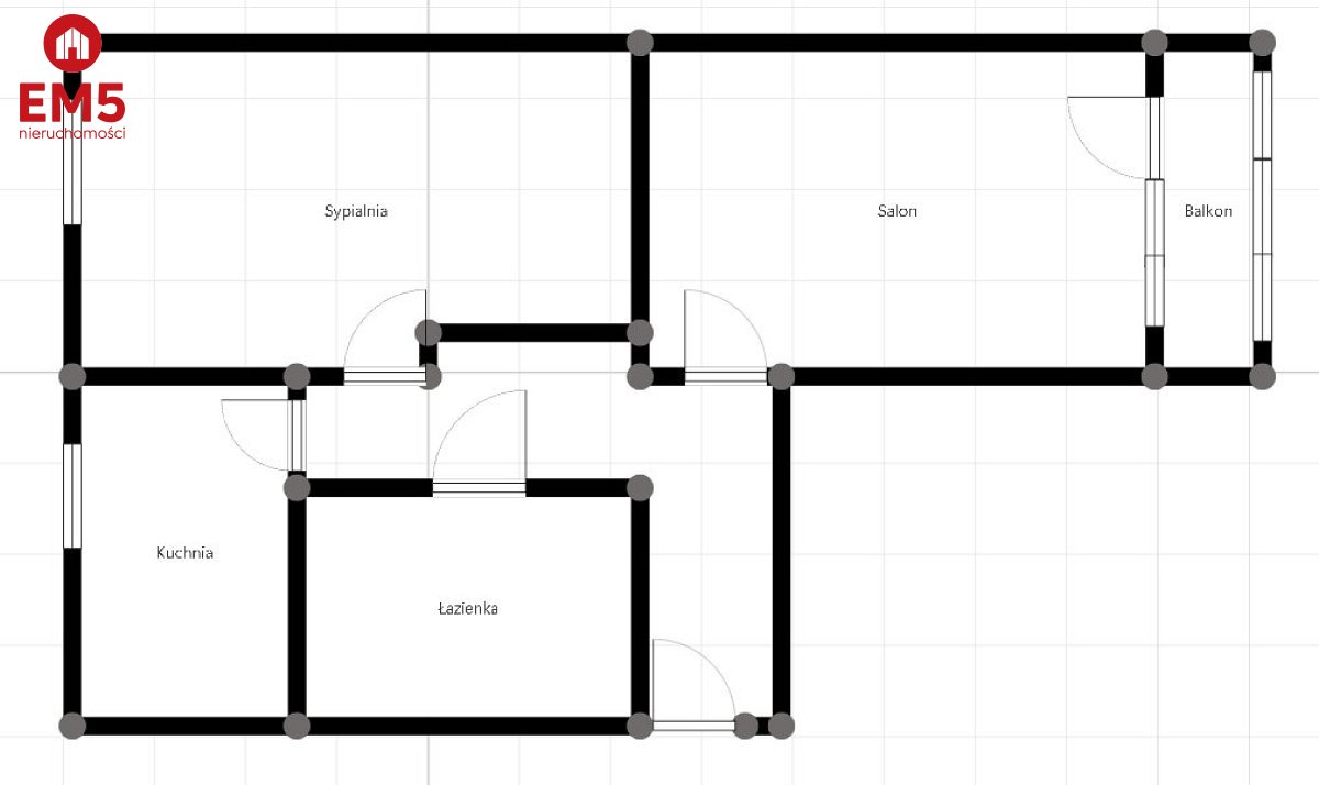
Na sprzedaż dwupokojowe mieszkanie, znajdujące się na 3 piętrze czteropiętrowego bloku w popularnej dzielnicy Piasta II przy ulicy Piastowskiej.
Na powierzchni 43 m2 znajdują się:
- Duży salon z wyjściem na przeszklony balkon.
- Przestronna sypialnia.
- Osobna kuchnia.
- Łazienka z wanną i pralką.
Mieszkanie jest dwustronne, zadbane, czyste i przytulne. Wszystkie elementy wykończenia i meble są w bardzo dobrym stanie. Rok temu stare okna zostały wymienione na nowe dzwiękoszczelne.
Do mieszkania przynależy piwnica - doskonałe miejsce do przechowywania rzeczy, które nie są potrzebne na co dzień.
Przed budynkiem znajduje się duży, ogólnodostępny parking.
Mieszkanie będzie odpowiednie dla wielu osób: singli, par, małych rodzin z dzieckiem, a także doskonale nadaje się do wynajmu, biorąc pod uwagę brak dużych nakładów finansowych.
Po więcej informacji zapraszam do kontaktu.

:: Oferta wysłana z programu mediaRent (media-rent.eu) ::

Zusätzliche Informationen

Internet
Fernsehen
Balkon
Keller
Separate Küche
Anti -Burg -Türen / Fenster
Gegensprechanlage / Video

Andere Angebote des Werbetreibenden

Biuro Centrum
doradca ds. nieruchomości
Ich stimme der Verarbeitung meiner personenbezogenen Daten durch EM 5 für die Zwecke des Immobilienmaklergeschäfts zu und bestätige gleichzeitig, dass ich darüber informiert wurde, dass ich Zugang zum Inhalt meiner Daten habe, um diese zu bearbeiten oder zu löschen.