Wohnung zu verkaufen

Białystok, wysoki stoczek

660 000 PLN
11 972 PLN
55,13 m2
Verkauf
Markt: Sekundärmarkt
Bebaungsart: Wohnung
Baumaterial: Andere
Anzahl von Etagen: 8
Boden: 8
Anzahl der Zimmer: 3
Baujahr: 2022
Zustand der Fertigstellung: Leben
Fenster: Kunststoff
Heizung: Urban
Möbliert: Ja
Czynsz: 620 PLN
ID anbieten: 8760

Beschreibung

Szukasz nowoczesne 3 pokoje w nowym budownictwie - ta oferta jest dla Ciebie.
Polecam ofertę wyjątkowego, 3-pokojowego mieszkania ,położonego na 8 piętrze apartamentowca z dwoma windami, należącego do inwestycji Słoneczne Tarasy z 2022 roku przy Al. Jana Pawła II.
Mieszkanie wykończone stylowo w podwyższonym standardzie, przestrzeń jest doskonale zaprojektowana. Ostatnie piętro i jeden sąsiad za scianą zapewniają prywatnośc codziennego życia.
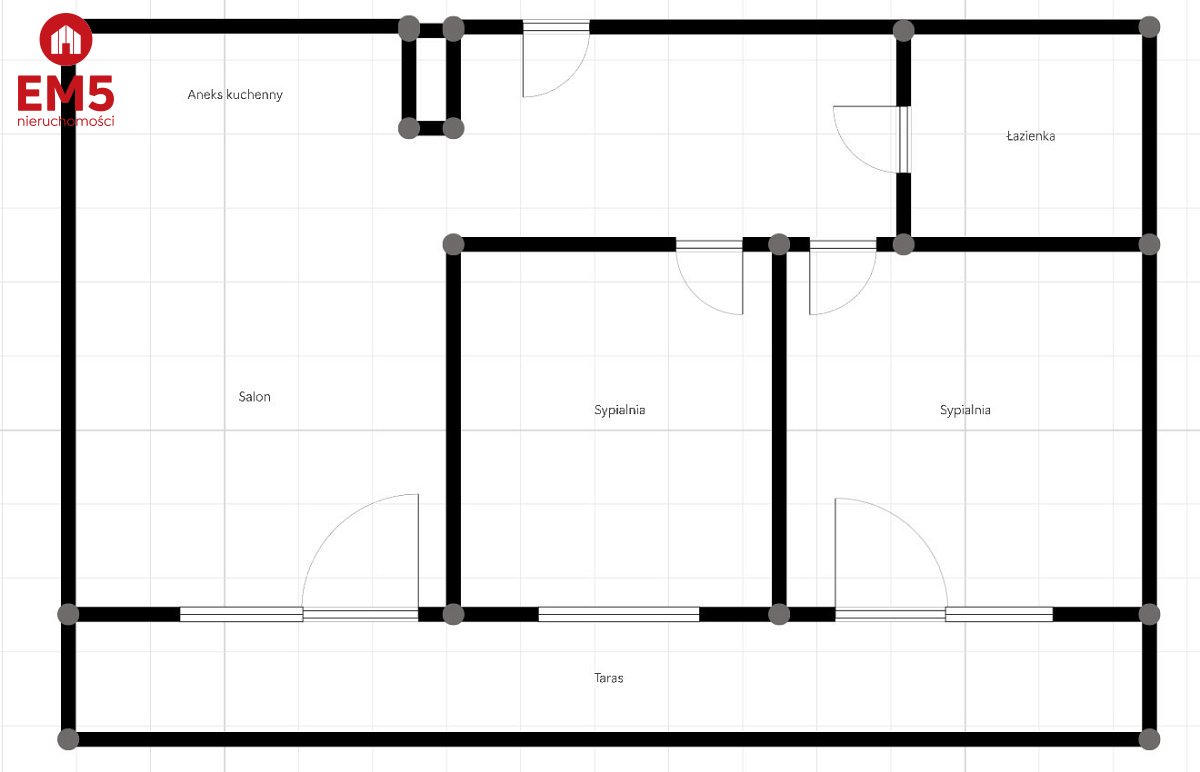
Na powierzchnie 55,13m2 składa się:
- przestronny salon z aneksem kuchennym i klimatyzacją.
- 2 oddzielne ,ustawne sypialnie
- łazienka z prysznicem
Mieszkanie posiada duży taras z pięknym widokiem na zieleń i zachody słońca. Taras ma 2 wyjścia : z sypialni oraz salonu. Dzięki beśpośredniej bliskości natury - można obserwować chodzące łosie, sarny, dziki.
Z mieszkaniem jest obowiązkowo sprzedawany zamykany (automatyczna brama na pilot) ,podziemny garaż o powierzchni 22,03 m2 w cenie dodatkowo 80 tys zł. Garaż zlokalizowany naprzeciw wyjścia z windy, posiada dużo miejsca do przychowywania.
Dodatkowe informacje:
-stan prawny: odrębna własność z KW
-czynsz wynosi ok.620 zł.
-nieruchomość obsługiwana przez wspólnotę.
Mieszkanie to bardzo dobra propozycja zarówno dla małej rodziny, pary, czy osób starszych, jak również pod inwestycję i wynajem.
Zapraszam do kontaktu i na prezentację.

:: Oferta wysłana z programu mediaRent (media-rent.eu) ::

Zusätzliche Informationen

Internet
Fernsehen
Bodenparkplätze
Terasse
Aufzug
Klimaanlage
Anti -Burg -Türen / Fenster
Gegensprechanlage / Video
Überwachung / Schutz

Andere Angebote des Werbetreibenden

Biuro Centrum
doradca ds. nieruchomości
Ich stimme der Verarbeitung meiner personenbezogenen Daten durch EM 5 für die Zwecke des Immobilienmaklergeschäfts zu und bestätige gleichzeitig, dass ich darüber informiert wurde, dass ich Zugang zum Inhalt meiner Daten habe, um diese zu bearbeiten oder zu löschen.