Apartment for rent

Białystok, Centrum

2 000 PLN
36 PLN
55 m2
Rental
Market: Aftermarket
Type of building: Block
Construction material: Brick
Number of floors: 5
Floor: 5
Number of rooms: 2
Year of construction: 1960
Condition of property: For residence
Windows: Plastic
Heating: District
Furnished: No
Offer id: 107

Description

Większość atrakcyjnych nieruchomości w tej okolicy znika zanim trafia na portale. Dlatego pracujemy również na ofertach dostępnych tylko dla naszych klientów.

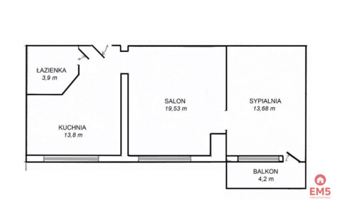
Przedstawiam państwu do wynajęcia słoneczne, dwupokojowe mieszkanie o powierzchni 55 m2, położone w zielonej i spokojnej okolicy, zaledwie kilka minut od centrum miasta.

W skład mieszkania wchodzi:
- jasny przestronny salon,
- pokój z wyjściem na balkon na którym można się zrelaksować i cieszyć poranną kawą,
- oddzielna kuchnia,
- nowoczesna łazienka.


W pobliżu znajdują się liczne sklepy, kawiarnie, restauracje oraz tereny rekreacyjne. Lokalizacja jest świetnie skomunikowana z resztą miasta. Przystanki komunikacji miejskiej (autobus) oraz stacja PKP znajdują się w odległości krótkiego spaceru. Dzięki temu, dojazd do pobliskich uczelni wyższych oraz do centrum miasta jest szybki i bezproblemowy. Do mieszkania przynależy również piwnica, co jest dodatkowym atutem. Lokal jest częściowo umeblowany, co daje możliwość dostosowania go do własnych potrzeb. To idealna propozycja dla osób ceniących sobie komfort, ciszę, a jednocześnie doskonały dostęp do miejskiej infrastruktury.Okolica zachwyca dużą ilością zieleni oraz pełną infrastrukturą. Mieszkanie po generalnym remoncie, gotowe do zamieszkania.


Opłaty: Czynsz 2000 + 500-700 czysz administacyjny + prąd gaz 200zł (opłaty są ruchome w zależności od zużycia) + 1 miesięczna kaucji oraz jednomiesięczna opłata agencyjna.



Jeśli ta nieruchomość nie spełnia wszystkich oczekiwań - skontaktuj się z nami. Pokażemy również inne oferty dopasowane do Twoich potrzeb, w tym takie, które nie są jeszcze publikowane.

Additional information

Internet
Balcony
Basement
Lift
Intercom / videophone

Other offers from the advertiser

Biuro Centrum
Menadżer
I consent to the processing of my personal data by EM 5 for purposes related to real estate brokerage activities, at the same time I confirm that I have been informed that I will have access to my data for editing or deletion.