Apartment for sale

Białystok, Białostoczek

490 000 PLN
10 426 PLN
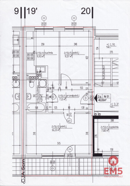
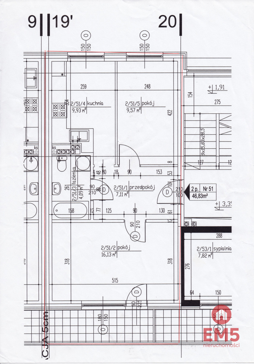
47 m2
Sale
Market: Aftermarket
Type of building: Block
Construction material: Brick
Number of floors: 3
Floor: 1
Number of rooms: 2
Year of construction: 2008
Condition of property: For residence
Windows: Plastic
Heating: District
Furnished: No
Offer id: 81

Description

Większość atrakcyjnych nieruchomości w tej okolicy znika zanim trafia na portale. Dlatego pracujemy również na ofertach dostępnych tylko dla naszych klientów.

Przedstawiam ofertę nieruchomości  znajdującej  się na osiedlu Białostoczek w doskonałej poszukiwanej  lokalizacji. Mieszkanie idealne pod inwestycję ze względu na bliskość centrum miasta. Lokal znajduje się na I piętrze, z balkonem typu loggia w 3-piętrowym bloku. Mieszkanie w stanie "do wejścia" lub odświeżenia, częściowo umeblowane o powierzchni użytkowej 47 m2. Polecam małej rodzinie, singlom, parom, lub jako lokata kapitału ze względu na lokalizację.

W skład mieszkania wchodzi:
- Salon z balkonem typu loggia
- sypialnia
- kuchnia zabudowana oraz AGD ( piekarnik, okap, zmywarka, lodówka, płyta gazowa)
- łazienka z wanną oraz WC 

Informacje dodatkowe:
- okna plastikowe
- komórka lokatorska 3m2
- duży parking obok budynku do dyspozycji mieszkańców
- drzwi antywłamaniowe

Atuty nieruchomości 
- doskonała lokalizacja inwestycyjna
- lokal gotowy do zamieszkania
- kameralne położenie ,plac zabaw dla najmłodszych i dużo zieleni
- możliwość dokupienia miejsca parkingowego w podziemnym parkingu
  w cenie 50 000,00 zł

Budynek z 2008 roku w bardzo dobrym stanie. W bliskiej okolicy przychodnia, szkoły , sklepy, galeria , banki, kościół, szpitale oraz komunikacja miejska. Doskonała lokalizacja blisko centrum, doskonale skomunikowane z resztą miasta i obwodnicą Białegostoku. W bliskiej okolicy ścieżki rowerowe i miejsca rekreacyjne .

Polecam i zapraszam do kontaktu .

Jeśli ta nieruchomość nie spełnia wszystkich oczekiwań - skontaktuj się z nami. Pokażemy również inne oferty dopasowane do Twoich potrzeb, w tym takie, które nie są jeszcze publikowane.

Additional information

Internet
Television
Utility room
Surface parking spaces
Intercom / videophone

Other offers from the advertiser

Biuro Centrum
Ekspert rynku nieruchomości
I consent to the processing of my personal data by EM 5 for purposes related to real estate brokerage activities, at the same time I confirm that I have been informed that I will have access to my data for editing or deletion.