











Hala handlowa na sprzedaż
Białystok, Zawady
3 300 000 PLN
3 837 PLN
860 m2
Sprzedaż
Rynek:
wtórny
Piętro:
0
Wolne od:
2020-01-25
Umeblowane:
Tak
Id Oferty:
1381
Opis
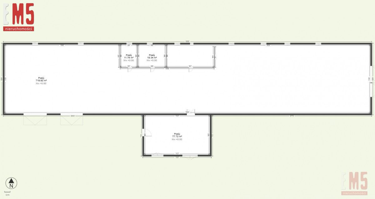
Na sprzedaż hala handlowa na osiedlu Zawady. Możliwość wykorzystania na różne cele. Dogodna lokalizacja blisko obwodnicy miasta. Duża działka ok. 2400m2 przeznaczona w MPZP na cele usługowe.
Do budynku doprowadzona jest kanalizacja. Obok działki przebiega linia gazu. Obecnie ogrzewanie za pomocą elektrycznych nawiewników oraz lamp.
Budynek parterowy. 2 wjazdy z drogi.
Więcej ofert na naszej stronie.
:: Oferta wysłana z programu mediaRent (media-rent.eu) ::
Informacje dodatkowe
Prąd
Woda
Gaz
Kanalizacja
Parking
Klimatyzacja