Bezczynszowe mieszkania - os. Zawady

Białystok, Zawady

497 700 PLN
7 777 PLN
64 m2
Sprzedaż
Rynek: wtórny
Rodzaj zabudowy: Blok
Materiał budowy: Cegła
Liczba pięter: 1
Piętro: 1
Liczba pokoi: 4
Rok budowy: 2025
Stan wykończenia: Do zamieszkania
Okna: Plastikowe
Ogrzewanie: Miejskie
Umeblowane: Nie
Id oferty: 28

Opis

MIESZKANIA BEZCZYNSZOWE W ZABUDOWIE SZEREGOWEJ, osiedle Zawady

Prezentujemy Państwu nowy kompleks 6 mieszkań w zabudowie szeregowej, zlokalizowany w spokojnej i zielonej części miasta - na osiedlu Zawady. To idealne miejsce dla osób ceniących ciszę, spokój i bliskość natury, a jednocześnie chcących mieć wygodny dostęp do miejskiej infrastruktury.


W bezpośrednim sąsiedztwie znajdują się:
-
przystanek komunikacji miejskiej,
- droga asfaltowa oraz oświetlony chodnik,
- ścieżka rowerowa,
- szkoły, przedszkola, sklepy, przychodnie,
- siłownia na świeżym powietrzu i nowoczesny plac zabaw.


Od centrum miasta dzieli inwestycję zaledwie ok. 5 km.


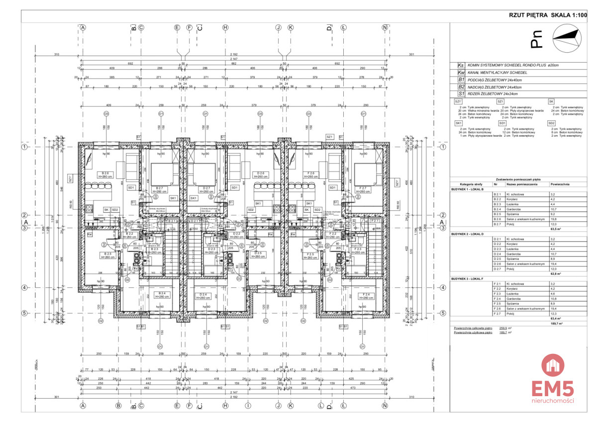
POWIERZCHNIA I UKŁAD


Mieszkania o powierzchni od 55 m2 do 64 m2 składają się z:
-3 pokoi,
- kuchni,
- łazienki.


Dodatkowo:
-
mieszkania parterowe posiadają prywatne ogródki,
-mieszkania na piętrze - przestronny strych do adaptacji.
Każde mieszkanie ma oddzielne wejście, zapewniające prywatność i komfort


STANDARD WYKOŃCZENIA
Dach pokryty blachodachówką na rąbek,
Wysokiej jakości stolarka okienna i drzwiowa,
Wykonane i rozprowadzone instalacje: elektryczna, hydrauliczna, CO (z grzejnikami), gazowa,
Tynki wewnętrzne oraz posadzki przygotowane do wykończenia,
Budynki ocieplone styropianem oraz wełną mineralną.
Zapraszamy do zapoznania się z projektem oraz z malowniczym otoczeniem, w którym powstaje inwestycja.

Inne oferty ogłoszeniodawcy

Biuro Centrum
doradca ds. nieruchomości
Wyrażam zgodę na przetwarzanie moich danych osobowych przez firmę EM 5 dla celów związanych z działalnością pośrednictwa w obrocie nieruchomościami, jednocześnie potwierdzam, iż zostałem poinformowany o tym, iż będę posiadać dostęp do treści swoich danych do ich edycji lub usunięcia.