Mieszkanie 47 m2. 2 pokoje

Białystok, Białostoczek

490 000 PLN
10 426 PLN
47 m2
Sprzedaż
Rynek: wtórny
Rodzaj zabudowy: Blok
Materiał budowy: Cegła
Liczba pięter: 3
Piętro: 1
Liczba pokoi: 2
Rok budowy: 2008
Stan wykończenia: Do zamieszkania
Okna: Plastikowe
Ogrzewanie: Miejskie
Umeblowane: Nie
Id oferty: 81

Opis

Większość atrakcyjnych nieruchomości w tej okolicy znika zanim trafia na portale. Dlatego pracujemy również na ofertach dostępnych tylko dla naszych klientów.

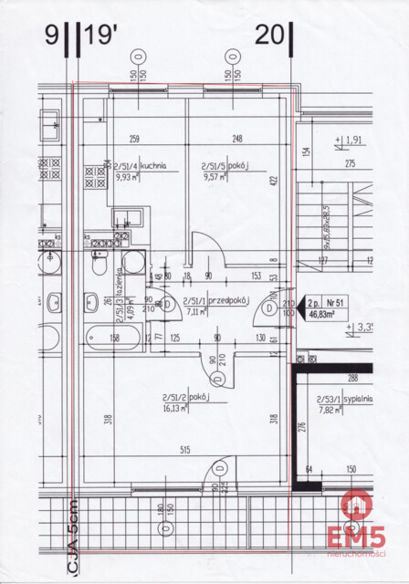
Przedstawiam ofertę nieruchomości  znajdującej  się na osiedlu Białostoczek w doskonałej poszukiwanej  lokalizacji. Mieszkanie idealne pod inwestycję ze względu na bliskość centrum miasta. Lokal znajduje się na I piętrze, z balkonem typu loggia w 3-piętrowym bloku. Mieszkanie w stanie "do wejścia" lub odświeżenia, częściowo umeblowane o powierzchni użytkowej 47 m2. Polecam małej rodzinie, singlom, parom, lub jako lokata kapitału ze względu na lokalizację.

W skład mieszkania wchodzi:
- Salon z balkonem typu loggia
- sypialnia
- kuchnia zabudowana oraz AGD ( piekarnik, okap, zmywarka, lodówka, płyta gazowa)
- łazienka z wanną oraz WC 

Informacje dodatkowe:
- okna plastikowe
- komórka lokatorska 3m2
- duży parking obok budynku do dyspozycji mieszkańców
- drzwi antywłamaniowe

Atuty nieruchomości 
- doskonała lokalizacja inwestycyjna
- lokal gotowy do zamieszkania
- kameralne położenie ,plac zabaw dla najmłodszych i dużo zieleni
- możliwość dokupienia miejsca parkingowego w podziemnym parkingu
  w cenie 50 000,00 zł

Budynek z 2008 roku w bardzo dobrym stanie. W bliskiej okolicy przychodnia, szkoły , sklepy, galeria , banki, kościół, szpitale oraz komunikacja miejska. Doskonała lokalizacja blisko centrum, doskonale skomunikowane z resztą miasta i obwodnicą Białegostoku. W bliskiej okolicy ścieżki rowerowe i miejsca rekreacyjne .

Polecam i zapraszam do kontaktu .

Jeśli ta nieruchomość nie spełnia wszystkich oczekiwań - skontaktuj się z nami. Pokażemy również inne oferty dopasowane do Twoich potrzeb, w tym takie, które nie są jeszcze publikowane.

Informacje dodatkowe

Internet
Telewizja
Pomieszczenie użytkowe
Miejsca parkingowe naziemne
Domofon / wideofon

Inne oferty ogłoszeniodawcy

Biuro Centrum
Ekspert rynku nieruchomości
Wyrażam zgodę na przetwarzanie moich danych osobowych przez firmę EM 5 dla celów związanych z działalnością pośrednictwa w obrocie nieruchomościami, jednocześnie potwierdzam, iż zostałem poinformowany o tym, iż będę posiadać dostęp do treści swoich danych do ich edycji lub usunięcia.