Аренда помещений для бизнеса

Białystok

58 900 PLN
42 PLN
1 400 m2
аренда
рынок: вторичный рынок
Пол: 0
Меблированно: Нет
год строительства: 2026
Предназначен для: Коммерческая
Id Oferty: 286

Описание

Większość atrakcyjnych nieruchomości w tej okolicy znika zanim trafia na portale. Dlatego pracujemy również na ofertach dostępnych tylko dla naszych klientów.

Zaprojektuj swój własny biznes


Nowoczesna powierzchnia usługowa do wynajęcia - Białystok, ul. Hetmańska
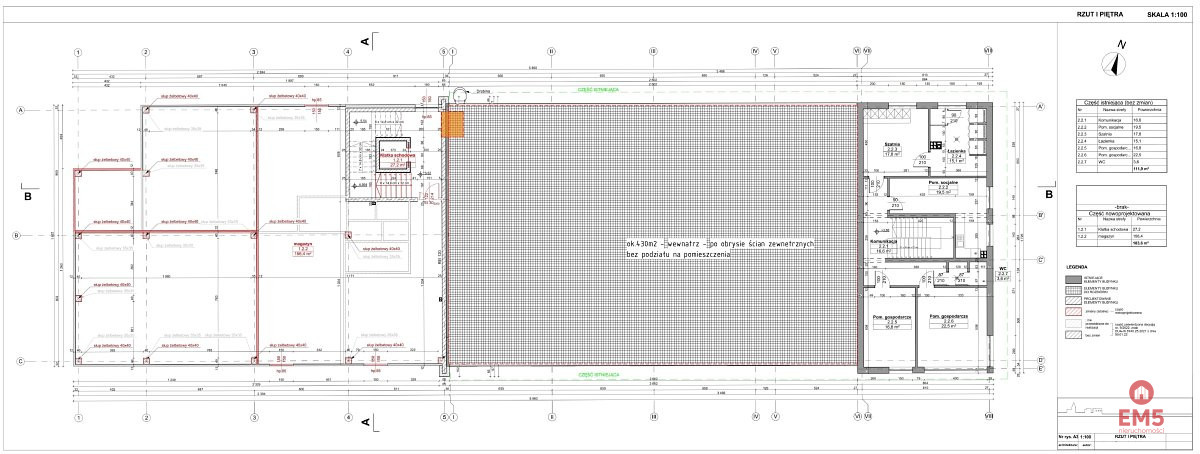
Powierzchnia całkowita: ok. 1 400 m2
Dostępne kondygnacje:
Parter - ok. 500 m2 | wysokość: 4 m
I piętro - ok. 430 m2 | wysokość: 3,5 m
II piętro - ok. 500 m2 | wysokość: 3,5 m


Dostępna powierzchnia najmu: od 20 m2
Cena najmu: od 42 zł/m2 netto - zależna od wykończenia i lokalizacji w budynku


Zaprojektuj przestrzeń według własnych potrzeb
Na tym etapie inwestycji oferujemy możliwość indywidualnego zaplanowania:
- rozkładu pomieszczeń
- funkcjonalności lokalu
- standardu wykończenia


Przyszli najemcy mogą dopasować lokal do swoich potrzeb - czy to będą:
- gabinety lekarskie lub terapeutyczne
- sale dydaktyczne lub szkoleniowe
- przestrzenie coworkingowe
- pracownie rehabilitacyjne lub fizjoterapeutyczne


Nowoczesne rozwiązania techniczne
- Klimatyzacja i wentylacja mechaniczna
- Winda osobowa
- Przystosowanie budynku dla osób niepełnosprawnych
- Wysokość kondygnacji pozwalająca na szeroką gamę zastosowań


Lokalizacja
Białystok, ul. Hetmańska - blisko centrum miasta, doskonała ekspozycja, dogodny dojazd zarówno komunikacją miejską, jak i samochodem.
Parking: 50 miejsc postojowych do dyspozycji najemców i klientów


Preferowani najemcy
- Placówki edukacyjne (szkoły językowe, korepetycje, przedszkola prywatne)
- Ośrodki rehabilitacyjne i terapeutyczne
- Kliniki i gabinety medyczne
- Inne usługi pokrewne


Standard wykończenia
Zdjęcia dostępne na życzenie - przedstawiają przykładowe wykończenie lokali zgodne z wymaganiami najemców z branż medycznych i edukacyjnych (m.in. panele winylowe, podwieszane sufity, energooszczędne oświetlenie, instalacje sanitarne pod gabinety lekarskie, sale konferencyjne itp.)


Kontakt i rezerwacja powierzchni
Zapraszamy do kontaktu w celu uzyskania rzutu budynku, dostępnych powierzchni oraz indywidualnej oferty wykończenia.
E-mail: jacek.sidorowicz@em5.pl
Telefon: 575677996



Jeśli ta nieruchomość nie spełnia wszystkich oczekiwań - skontaktuj się z nami. Pokażemy również inne oferty dopasowane do Twoich potrzeb, w tym takie, które nie są jeszcze publikowane.

дополнительная информация

электричество
вода
газ
интернет
канализация
стоянка
лифт
кондиционер
обогрев
Мониторинг / защита
Аварийная система

Другие предложения рекламодателя

Biuro Centrum
Ekspert rynku nieruchomości
Я соглашаюсь на обработку моих личных данных EM 5 в целях, связанных с брокерской деятельностью в сфере недвижимости, в то же время я подтверждаю, что мне сообщили, что у меня будет доступ к содержанию моих данных для редактирования или удаления их.