квартира на продажу

Rutka-Tartak

250 000 PLN
4 132 PLN
60,5 m2
продажа
рынок: вторичный рынок
тип здания: Ед. изм
строительный материал: кирпич
количество этажей: 2
Пол: 1
количество комнат: 3
год строительства: 1985
Состояние отделки: Жить
окна: Пластик
обогрев: Городской
Меблированно: Да
Идентификатор предложения.: 570

Описание

Większość atrakcyjnych nieruchomości w tej okolicy znika zanim trafia na portale. Dlatego pracujemy również na ofertach dostępnych tylko dla naszych klientów.

Przedstawiam ofertę sprzedaży jasnego i przytulnego mieszkania 3 - pokojowego w bloku w Rutce-Tartak.
Niepowtarzalna oferta dla osób, które szukają komfortu, przestrzeni i spokoju w jednym miejscu!
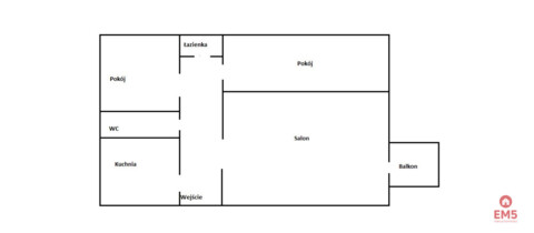
- powierzchnia 60,50 m²
- piętro 1 z 2
W skład mieszkania wchodzą:
- 3 słoneczne, ustawne pokoje
- przestronna kuchnia z dodatkowym pomieszczeniem (spiżarnia/garderoba) bardzo praktyczne rozwiązanie
- oddzielna łazienka
- osobne WC
- balkon
- duża piwnica (11,6m2) czyli dużo miejsca do przechowywania
W cenie mieszkania:
- 2 wygodne miejsca postojowe
- prywatna działka - idealna na ogródek, relaks, grilla czy bezpieczne miejsce zabaw dla dzieci
Pozostałe informacje:
- ogrzewanie miejskie (kotłownia w dalszej części bloku na olej)
- brak osób zameldowanych w mieszkaniu
- okna plastikowe, na podłogach terakota, panele oraz gres
- duża szafa z lustrami w zabudowie usytuowana w salonie
- miesięczne opłaty na poziomie ok. 780 zł
Mieszkanie zadbane, gotowe do zamieszkania lub aranżacji według własnego gustu, dostępne od zaraz.
Spokojna okolica, z dala od miejskiego zgiełku, a jednocześnie w pobliżu najważniejszej infrastruktury. Idealne dla rodziny, pary lub osób ceniących wygodę i funkcjonalny układ pomieszczeń.
To miejsce, w którym naprawdę można poczuć się jak u siebie.
Zapraszamy do obejrzenia mieszkania na żywo!
Oferta dostępna tylko w naszym biurze.

Jeśli ta nieruchomość nie spełnia wszystkich oczekiwań - skontaktuj się z nami. Pokażemy również inne oferty dopasowane do Twoich potrzeb, w tym takie, które nie są jeszcze publikowane.

дополнительная информация

балкон
подвал
сад
Домофон / Видео

Другие предложения рекламодателя

Biuro Suwałki
Консультант по недвижимости
Я соглашаюсь на обработку моих личных данных EM 5 в целях, связанных с брокерской деятельностью в сфере недвижимости, в то же время я подтверждаю, что мне сообщили, что у меня будет доступ к содержанию моих данных для редактирования или удаления их.