Аренда помещений для бизнеса

Białystok, Marczuk

4 200 PLN
42 PLN
100 m2
аренда
рынок: первичный рынок
Пол: 1
Меблированно: Нет
год строительства: 2024
Состояние отделки: Готовый
Предназначен для: Коммерческая, Офис, Коммерческая
Id Oferty: 7337

Описание

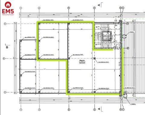
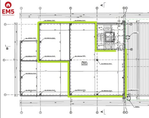
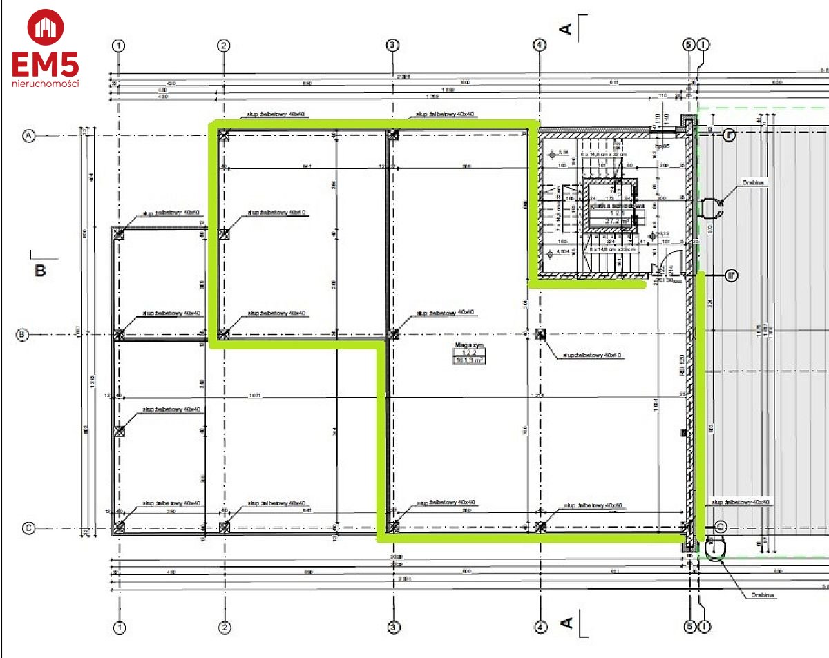
Polecam Państwu lokal użytkowy w nowym budynku przy ulicy Hetmańskiej. Obiekt jest obecnie w stanie deweloperskim. Przyszły najemca na tym etapie może rozplanować rozkład i kształt pomieszczeń, oraz standard wykończenia, a nawet usytuowanie okien. Na całość obecnie składają się 2 otwarte pomieszczenia, o łącznej powierzchni ok. 222 m2. Do dyspozycji najemcy i jego klientów jest przestronny parking, z wieloma stanowiskami. Niewątpliwą zaletą obiektu jest ciche otoczenie, oraz bliskość głównych arterii komunikacyjnych Białegostoku -
ul. Hetmańskiej i obwodnicy miasta. Cała posesja jest ogrodzona i wyposażona w monitoring.
Główne cechy i atuty lokalu:
- powierzchnia całkowita - 100m -222 m2
- wysokość kondygnacji - 2,8 m
- I piętro
- winda
- obiekt dostosowany do potrzeb niepełnosprawnych
- klimatyzacja
- wentylacja mechaniczna
- energooszczędne ogrzewanie wykorzystujące rekuperację
- energooszczędne oświetlenie
- parking
- dojazd drogą asfaltową
- wielofunkcyjne możliwości wykorzystania: handel, produkcja, usługi
- możliwość wynajęcia całego lokalu o powierzchni ok. 222 m2
Czynsz najmu wynosi 4200,00 zł + VAT (+ opłaty licznikowe w/g zużycia)
* zdjęcia wnętrz przedstawiają sąsiednie lokale po wykończeniu

:: Oferta wysłana z programu mediaRent (media-rent.eu) ::

дополнительная информация

электричество
вода
канализация
стоянка
лифт
кондиционер
обогрев
Мониторинг / защита

Другие предложения рекламодателя

Biuro Centrum
Ekspert rynku nieruchomości
Я соглашаюсь на обработку моих личных данных EM 5 в целях, связанных с брокерской деятельностью в сфере недвижимости, в то же время я подтверждаю, что мне сообщили, что у меня будет доступ к содержанию моих данных для редактирования или удаления их.