квартира на продажу

Białystok, Dziesięciny

435 000 PLN
7 190 PLN
60,5 m2
продажа
рынок: вторичный рынок
тип здания: Ед. изм
строительный материал: большой блок
количество этажей: 3
Пол: 1
количество комнат: 3
год строительства: 0
Состояние отделки: Подлежит ремонту
окна: Пластик
обогрев: Городской
Меблированно: Нет
Идентификатор предложения.: 740

Описание

Większość atrakcyjnych nieruchomości w tej okolicy znika zanim trafia na portale. Dlatego pracujemy również na ofertach dostępnych tylko dla naszych klientów.


Na sprzedaż mieszkanie o powierzchni 60,5 m² położone na 1 piętrze w budynku przy ul. Malinowej na osiedlu Dziesięciny w Białymstoku. Lokal posiada funkcjonalny układ i duży potencjał aranżacyjny, dzięki czemu świetnie sprawdzi się dla rodziny lub inwestycyjnie pod wynajem. To propozycja dla osób, które chcą urządzić wnętrze według własnego pomysłu i dopasować je do swoich potrzeb.

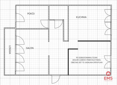
Mieszkanie składa się z przestronnego salonu z zabudowanym balkonem typu loggia, który stanowi dodatkową przestrzeń do relaksu lub przechowywania. Do dyspozycji jest również ustawna sypialnia zapewniająca komfortową przestrzeń do odpoczynku. Otwarta kuchnia z jadalnią (pierwotnie drugi pokój) daje możliwość łatwego przywrócenia trzeciego, niezależnego pomieszczenia. W lokalu znajduje się także łazienka oraz funkcjonalny przedpokój z miejscem na zabudowę. Do mieszkania przynależy piwnica, która zapewnia dodatkową przestrzeń do przechowywania.

Dużym atutem nieruchomości jest położenie na 1 piętrze - najbardziej poszukiwanym i wygodnym w codziennym użytkowaniu. Mieszkanie posiada okna PCV w bardzo dobrym stanie. Budynek znajduje się w spokojnej części osiedla, z dala od ruchliwej ulicy, co zapewnia ciszę i komfort mieszkańcom. Duża liczba miejsc parkingowych pod blokiem to dodatkowa zaleta.

W najbliższej okolicy znajdują się szkoła, przedszkole, sklepy, przystanki komunikacji miejskiej, a także boisko i tereny rekreacyjne. Lokalizacja gwarantuje wygodne życie na co dzień oraz stabilny popyt najmu. Mieszkanie sprzedawane jest w stanie do remontu, co daje pełną swobodę aranżacji i możliwość stworzenia nowoczesnej przestrzeni dopasowanej do własnych oczekiwań.

Jeśli ta nieruchomość nie spełnia wszystkich oczekiwań - skontaktuj się z nami. Pokażemy również inne oferty dopasowane do Twoich potrzeb, w tym takie, które nie są jeszcze publikowane.

дополнительная информация

интернет
телевизор
телефон
подвал
Домофон / Видео

Другие предложения рекламодателя

Biuro Centrum
Консультант по недвижимости
Я соглашаюсь на обработку моих личных данных EM 5 в целях, связанных с брокерской деятельностью в сфере недвижимости, в то же время я подтверждаю, что мне сообщили, что у меня будет доступ к содержанию моих данных для редактирования или удаления их.