квартира на продажу

Białystok, Słoneczny Stok

589 000 PLN
9 817 PLN
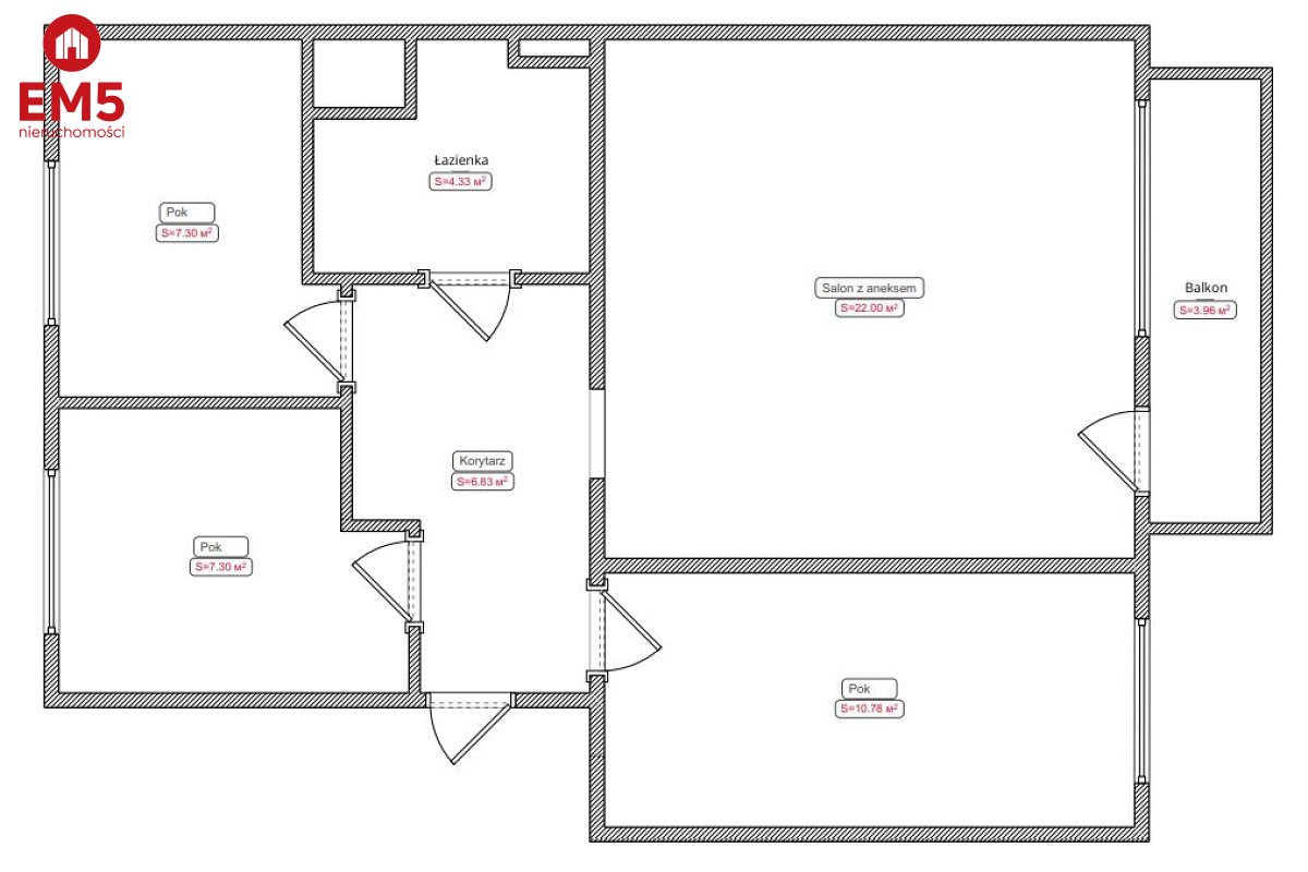
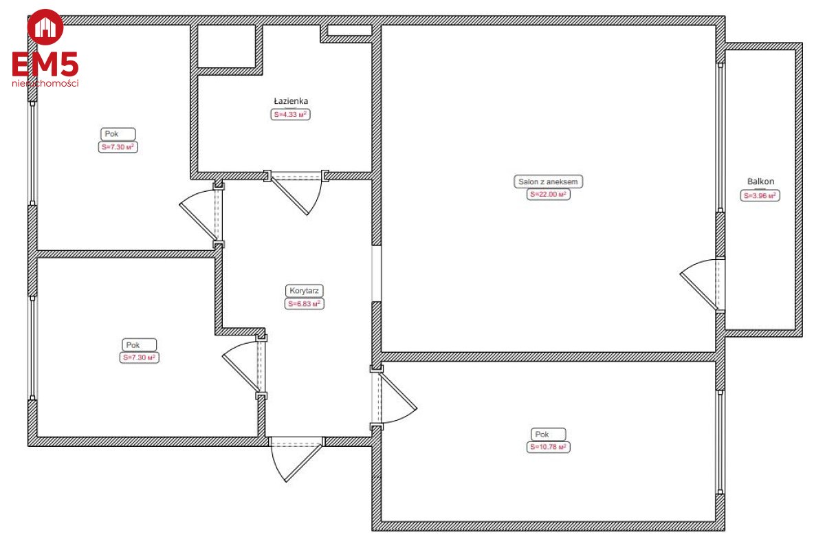
60 m2
продажа
рынок: вторичный рынок
тип здания: Ед. изм
количество этажей: 2
Пол: 2
количество комнат: 4
год строительства: 1970
Состояние отделки: Жить
окна: Пластик
обогрев: Городской
Меблированно: Да
Czynsz: 800 PLN
Идентификатор предложения.: 7714

Описание

Nowoczesne, jasne mieszkanie o powierzchni 60 m2, położone na 2. piętrze w niskim, kameralnym bloku na osiedlu Słoneczny Stok przy ul. Sikorskiego. Wnętrze zostało zaprojektowane z dbałością o każdy detal i wykończone wysokiej jakości materiałami.
- Powierzchnia 60 m2: salon z aneksem kuchennym oraz 3 oddzielne pokoje.
- Drugie piętro w 2-piętrowym budynku - najwyższa kondygnacja.
- Duży balkon z widokiem na zielone osiedle.
- Mieszkanie po kapitalnym remoncie - gotowe do zamieszkania.
- Meble wykonane na wymiar przez stolarza.
- Spokojna, dobrze skomunikowana okolica.
Idealne dla rodziny lub osób ceniących komfort i funkcjonalność. Przestrzeń dzienna została doskonale doświetlona, a starannie zaplanowany układ pomieszczeń zapewnia wygodę na co dzień.
Zapraszam na prezentację.

:: Oferta wysłana z programu mediaRent (media-rent.eu) ::

дополнительная информация

интернет
балкон
подвал
Домофон / Видео

Другие предложения рекламодателя

Biuro Suwałki
управляющий делами
Я соглашаюсь на обработку моих личных данных EM 5 в целях, связанных с брокерской деятельностью в сфере недвижимости, в то же время я подтверждаю, что мне сообщили, что у меня будет доступ к содержанию моих данных для редактирования или удаления их.