Аренда помещений для бизнеса

Białystok, Ceentrum

10 500 PLN
75 PLN
140,6 m2
аренда
рынок: первичный рынок
Пол: 0
Меблированно: Нет
год строительства: 2022
Состояние отделки: Готовый
Umiejscowienie lokalu: В торговом центре
Предназначен для: Коммерческая, Коммерческая
Id Oferty: 8234

Описание

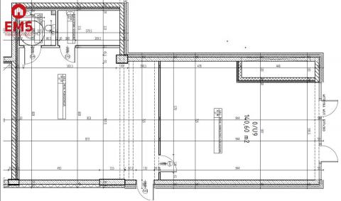
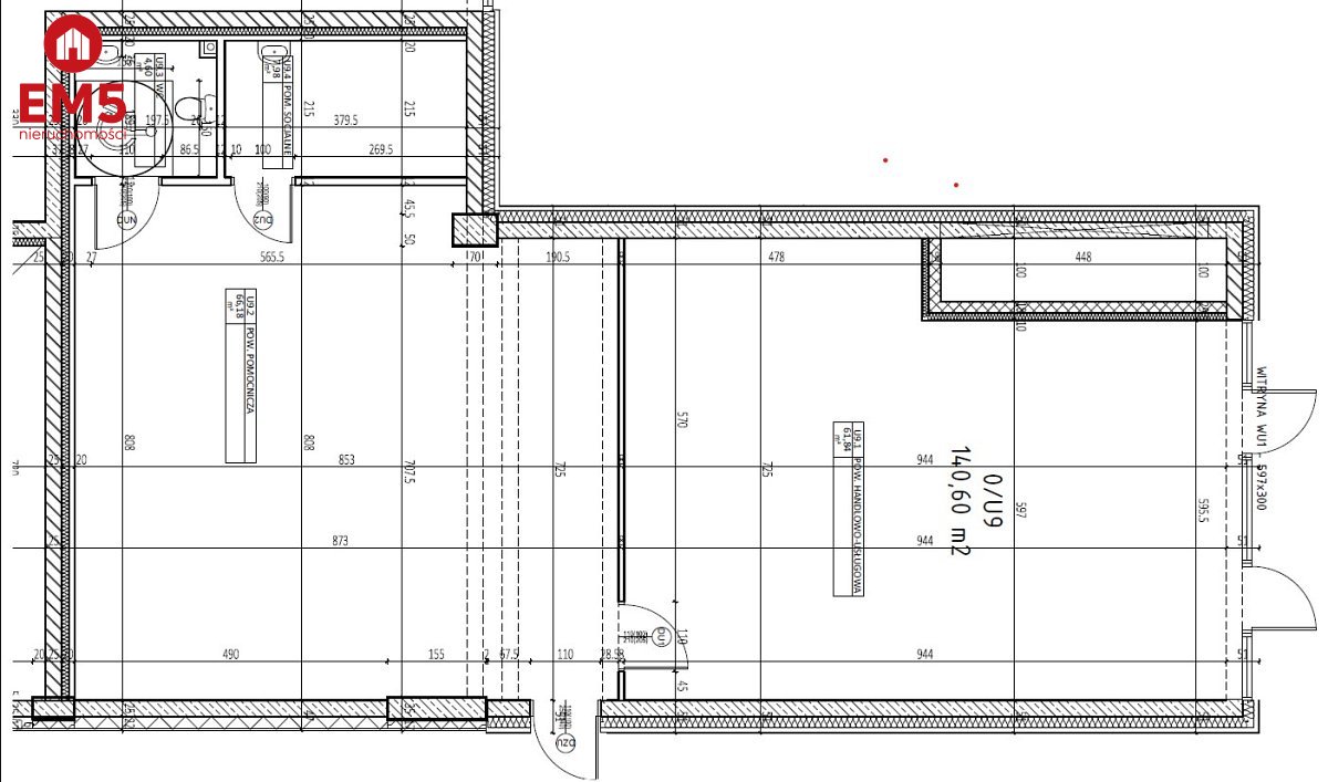
Na wynajem parterowy lokal handlowo-usługowy w stanie deweloperskim o powierzchni 140,6m2.
Lokal znajduje się w centrum miasta, wejście do lokalu znajduje się od ulicy o dużym natężeniu ruchu pieszego i samochodowego. Od frontu duże witryny. Wewnątrz lokalu sala sprzedaży, oraz 2 łazienki. Lokal jest przystosowany pod względem dostępności dla osób z niepełnosprawnością. Wszystkie media miejskie. Przypisane miejsce parkingowe. Do lokalu jest przypisana część terenu na zewnątrz, który można wynająć wnosząc opłatę do wspólnoty. Przeznaczenie lokalu handlowo-usługowe.
Czynsz wynajmu 10.500zł netto / miesiąc.
Dodatkowe opłaty- zużycie mediów.

:: Oferta wysłana z programu mediaRent (media-rent.eu) ::

дополнительная информация

электричество
интернет
канализация
сайт
стоянка
обогрев

Другие предложения рекламодателя

Biuro Centrum
doradca ds. nieruchomości
Я соглашаюсь на обработку моих личных данных EM 5 в целях, связанных с брокерской деятельностью в сфере недвижимости, в то же время я подтверждаю, что мне сообщили, что у меня будет доступ к содержанию моих данных для редактирования или удаления их.