квартира на продажу
Białystok, Wygoda
Описание
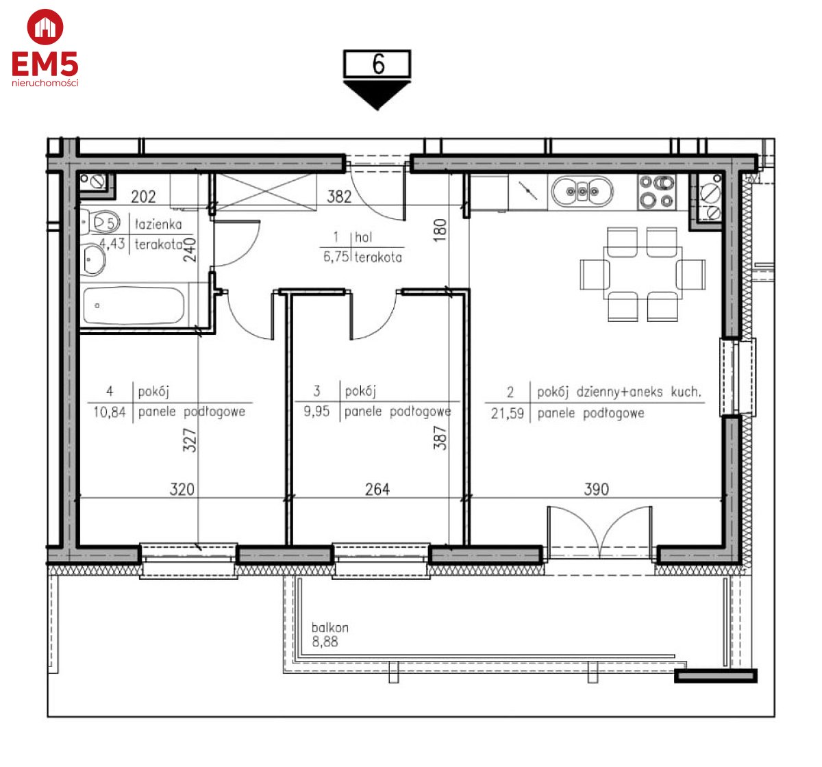
Przedstawiam państwu, wyjątkowe 3-pokojowe mieszkanie klasy premium o powierzchni 54 m2 w całości zaprojektowane przez architekta, zlokalizowane na nowoczesnym, zamkniętym osiedlu w dzielnicy Wygoda, wybudowane w 2023 roku.
Układ mieszkania:
- salon z aneksem kuchennym,
- dwie oddzielne sypialnie,
- łazienka,
- przestronny balkon 9 m2.
Standard wykończenia - premium max: podłogi z mikrocementu, zabudowa stolarska w całym mieszkaniu, szafy wykonane z forniru, płytki ceramiczne sprowadzane z włoch- -imola oraz lea, oświetlenie w najnowszych trendach wnętrzarskich, Lampy sprowadzane z Hiszpanii, indywidualny projekt architekta, spójna, ponadczasowa estetyka. Wyposażenie w cenie.
Doskonała komunikacja z centrum, wszystko, co potrzebne do codziennego życia - na wyciągnięcie ręki. W budynku sklep Żabka, w okolicy apteka, poczta, punkty usługowe. Ekspozycja południowo-zachodnio-wschodnia. Forma własności: pełna własność. Nowoczesny budynek z windą, zamknięte, bezpieczne osiedle. Dodatkowo, komórka lokatorska, garaż podziemny - dodatkowo płatny.
To mieszkanie jest prawdziwą perełką na rynku nieruchomości w Białymstoku - idealne zarówno do zamieszkania, jak i bezpieczna inwestycja. Gotowe do zamieszkania, bez żadnych nakładów. To propozycja dla osób, które szukają czegoś więcej niż standardowej oferty rynkowej - przemyślanej estetyki, najwyższej jakości materiałów i doskonałej lokalizacji.
Zapraszam do kontaktu i na prezentacje. Mieszkanie z klauzulą wylączności.
:: Oferta wysłana z programu mediaRent (media-rent.eu) ::