квартира на продажу

Białystok, Białostoczek

490 000 PLN
10 426 PLN
47 m2
продажа
рынок: вторичный рынок
тип здания: Ед. изм
строительный материал: другие
количество этажей: 3
Пол: 1
количество комнат: 2
год строительства: 2008
Состояние отделки: Жить
окна: Пластик
обогрев: Городской
Czynsz: 700 PLN
Идентификатор предложения.: 8846

Описание

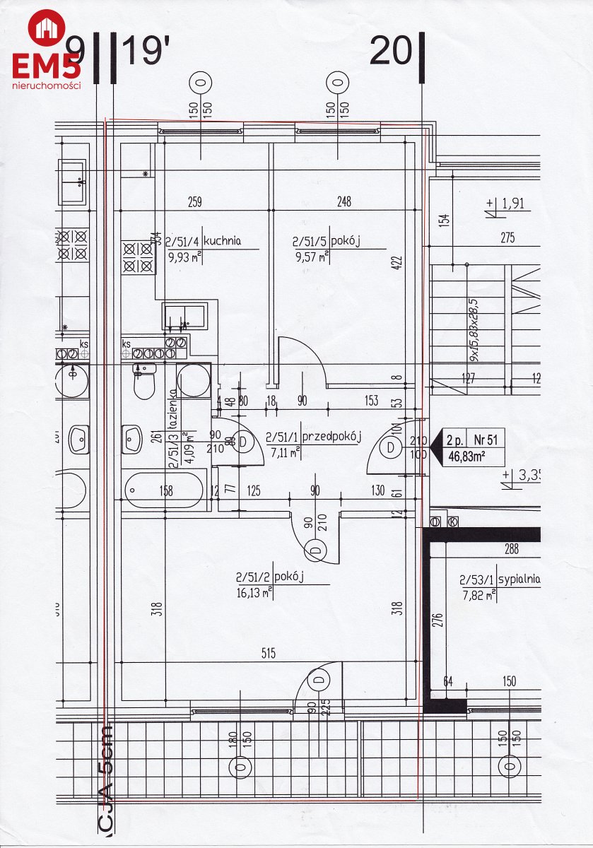
Przedstawiam ofertę nieruchomości znajdującej się na osiedlu Białostoczek w doskonałej poszukiwanej lokalizacji. Mieszkanie idealne pod inwestycję ze względu na bliskość centrum miasta. Lokal znajduje się na I piętrze, z balkonem typu loggia w 3-piętrowym bloku. Mieszkanie w stanie "do wejścia" lub odświeżenia, częściowo umeblowane o powierzchni użytkowej 47 m2. Polecam małej rodzinie, singlom, parom, lub jako lokata kapitału ze względu na lokalizację.
W skład mieszkania wchodzi:
- Salon z balkonem typu loggia
- sypialnia
- kuchnia zabudowana oraz AGD ( piekarnik, okap, zmywarka, lodówka, płyta gazowa)
- łazienka z wanną oraz WC
Informacje dodatkowe:
- okna plastikowe
- komórka lokatorska 3m2
- duży parking obok budynku do dyspozycji mieszkańców
- drzwi antywłamaniowe
Atuty nieruchomości
- doskonała lokalizacja inwestycyjna
- lokal gotowy do zamieszkania
- kameralne położenie ,plac zabaw dla najmłodszych i dużo zieleni
- możliwość dokupienia miejsca parkingowego w podziemnym parkingu
w cenie 50 000,00 zł
Budynek z 2008 roku w bardzo dobrym stanie. W bliskiej okolicy przychodnia, szkoły , sklepy, galeria , banki, kościół, szpitale oraz komunikacja miejska. Doskonała lokalizacja blisko centrum, doskonale skomunikowane z resztą miasta i obwodnicą Białegostoku. W bliskiej okolicy ścieżki rowerowe i miejsca rekreacyjne .
Polecam i zapraszam do kontaktu .

:: Oferta wysłana z programu mediaRent (media-rent.eu) ::

дополнительная информация

интернет
телевизор
подвал
терраса
отдельная кухня
Домофон / Видео

Другие предложения рекламодателя

Biuro Centrum
Ekspert rynku nieruchomości
Я соглашаюсь на обработку моих личных данных EM 5 в целях, связанных с брокерской деятельностью в сфере недвижимости, в то же время я подтверждаю, что мне сообщили, что у меня будет доступ к содержанию моих данных для редактирования или удаления их.