House for sale

Białystok, Centrum

2 690 000 PLN
4 864 PLN
553 m2
Sale
Market: Aftermarket
Type of building: Tenement house
Construction material: Brick
The condition of property: To be renovated
Year of construction: 1893
Number of floors: 2 floors
Number of rooms: 15
Land: 490 m2
Dach: Slanted
Poddasze: Non-utility
Roof type: Sheet
Windows: Plastic
Location: City
Offer id: 6551
Heating: Coal, Fireplace
Fence: Brickwork, Metal

Description

Zapraszam do zapoznania się z ofertą kamienicy zabytkowej w doskonałej lokalizacji w Centrum Białegostoku. Dwupiętrowy budynek mieszkalno-usługowy o powierzchni użytkowej 553 m2 wzniesiony na działce 490 m2.Doskonała inwestycja z potencjałem , lokata kapitału nieruchomość z wieloma możliwościami . Budynek wpisany do Wojewódzkiego Rejestru Zabytków.
Na jego wnętrza składają się:
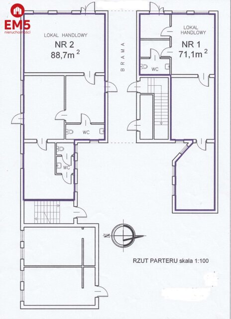
Parter:
- lokal użytkowy o łącznej powierzchni 71,1 m2 podzielony na dwa odrębne lokale, jeden od strony
ulicy o powierzchni 35,1 m2 - obecnie znajduje się w nim sklep oraz drugi z wejściem od podwórka w
którym znajduje się kotłownia oraz odrębne dodatkowe pomieszczenie o łącznej powierzchni 36 m2)
- lokal -pomieszczenie użytkowe o powierzchni 39.4 m2
- lokal -pomieszczenie użytkowe o powierzchni 49,3 m2
I piętro:
- lokal mieszkalny o powierzchni 111,6 m2
- lokal mieszkalny o powierzchni 85,3 m2
II piętro
- lokal mieszkalny o powierzchni 85,3
- lokal mieszkalny o powierzchni 82 m2
- lokal mieszkalny o powierzchni 29,6 m2
Dane dodatkowe :
- okna plastikowe i aluminiowe
- teren zamknięty
- piwnica lub kotłownia
- możliwość podłączenia się do miejskiej sieci grzewczej
- wysokość wnętrz 3,4 m
- 4 balkony
- dach kryty blachą trapezową (wymieniony 12 lat temu)
- ogrzewanie (kominki oraz system CO zasilany piecem na paliwa stałe)
Media: wodociąg, kanalizacja, energia elektryczna
Budynek z około 1900 roku w doskonałej lokalizacji z wieloma możliwościami inwestycyjnymi. W okolicy centrum ,punkty usługowe, bank, doskonała komunikacja z resztą miasta.
Zapraszam na prezentację i do kontaktu

:: Oferta wysłana z programu mediaRent (media-rent.eu) ::

Additional information

Electricity
Water
Sewerage
Basement
Loft
Intercom / videophone
Enclosed area

Other offers from the advertiser

Biuro Centrum
Ekspert rynku nieruchomości
I consent to the processing of my personal data by EM 5 for purposes related to real estate brokerage activities, at the same time I confirm that I have been informed that I will have access to my data for editing or deletion.