Apartment for sale

Białystok, Dziesięciny

398 000 PLN
6 747 PLN
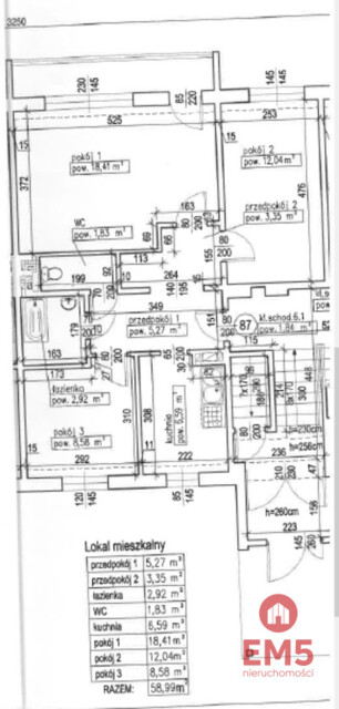
58,99 m2
Sale
Market: Aftermarket
Type of building: Block
Construction material: Another
Number of floors: 11
Floor: 1
Number of rooms: 3
Year of construction: 1984
Condition of property: For residence
Windows: Plastic
Heating: District
Furnished: No
Offer id: 689

Description


Na sprzedaż: 3-pokojowe mieszkanie na PARTERZE | 58,99 m²
Dziesięciny II / Bacieczki - ul. Jarzębinowa
Na sprzedaż funkcjonalne, jasne mieszkanie na PARTERZE, do remontu, idealne dla inwestorów oraz rodzin. Nieruchomość położona w spokojnej, zielonej i doskonale skomunikowanej części miasta.

Najważniejsze atuty: PARTER - świetny pod wynajem i bez barier.
Do remontu - pełna swoboda aranżacji. Dwustronne, jasne i przestronne:
3 niezależne pokoje z możliwością przerobienia na 4 pokoje
Łazienka + osobne WC
Duży balkon
Piwnica
Okna PCV
Dodatkowe informacje
Pełna własność - założona księga wieczysta
Mieszkanie na PARTERZE, do remontu
Idealne dla inwestorów - układ sprzyja wynajmowi
Cena: 398 000 zł (ok. **6 746 zł/m²)

Zapraszam do kontaktu i na prezentację:
787 08 08 05

Additional information

Internet
Television
Telephone
Surface parking spaces
Basement
Lift
Intercom / videophone

Other offers from the advertiser

Biuro Centrum
real estate advisor
I consent to the processing of my personal data by EM 5 for purposes related to real estate brokerage activities, at the same time I confirm that I have been informed that I will have access to my data for editing or deletion.