Business premises for rent

Białystok, Jaroszówka

7 150 PLN
55 PLN
130 m2
Rental
Market: Primary market
Floor: Basement
Year of construction: 2025
Condition of property: To finish
Umiejscowienie lokalu: In a block of flats
Id Oferty: 8772

Description

Wyjątkowa oferta wynajmu nowych lokali handlowo-usługowych w przepięknym Uzdrowisku Supraśl.
Nowo powstały elegancki kompleks apartamentowy tuż nad rzeką, w centralnej części miasteczka.

LOKALIZACJA:
Uzdrowisko Supraśl woj. podlaskie. Przepiękne miasteczko robiące błyskawiczną karierę w kraju i za granicą. Miejsce o wspaniałych walorach chętnie odwiedzane przez turystów i kuracjuszy przez cały rok. Miasteczko w sezonie pęka w szwach. Puszcza Knyszyńska, czyste powietrze, malownicze widoki i przebogata historycznie okolica sprawiają, że miejsce to stało się prawdziwą perełką całego regionu.

Lokale usytuowane w reprezentacyjnym obiekcie, tuż przy supraskich bulwarach z największym natężeniem turystycznego ruchu. Idealne miejsce do prowadzenia działalności usługowych i handlowych typu:
- Gabinety kosmetyczne, zabiegowe, masażu
- Gabinety medyczne, rehabilitacyjne, fizjoterapii, itp
- Gastronomia, kuchnia regionalna, kafejki i restauracje
- Lokale rekreacyjne i sportowe
- Lokale handlowe, sklepiki, pamiątki itp

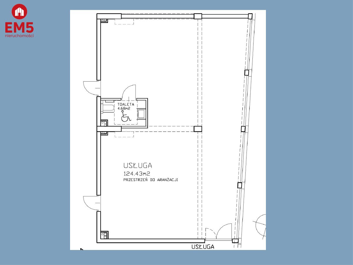
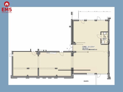
- Powierzchnie lokali od 45 m2 do 188 m2
- Parter, oraz poziom -1. Winda, pełne dostosowanie do osób niepełnosprawnych
- Obiekt typu Premium, wysokiej klasy wnętrza i pięknie zagospodarowane otoczenie
- Lokale do wykończenia i własnej aranżacji przestrzeni ( stan deweloperski)
- Proponowana cena 55 zł/m2, plus media. Wszelkie szczegóły do indywidualnych ustaleń.

Proponujemy Państwu pośrednictwo wraz z pełnym zakresem pomocy od pierwszego kontaktu, po uroczyste otwarcie lokalu :)
Nieruchomości Komercyjne EM5, Tomasz tel. 886 693 886. Zapraszamy.

:: Oferta wysłana z programu mediaRent (media-rent.eu) ::

Additional information

Electricity
Water
Gas
Telephone
Internet
Sewerage
Parking
Lift
Air conditioning
Heating
Intercom / videophone
Monitoring / security
Alarm system

Other offers from the advertiser

Biuro Centrum
Menadżer lokale komercyjne
I consent to the processing of my personal data by EM 5 for purposes related to real estate brokerage activities, at the same time I confirm that I have been informed that I will have access to my data for editing or deletion.