Ładne 4 pokoje Ul. Kalinowa 84m2 piętro 1

Białystok, Dziesięciny

669 000 PLN
7 917 PLN
84,5 m2
Sprzedaż
Rynek: wtórny
Rodzaj zabudowy: Blok
Materiał budowy: Wielka płyta
Liczba pięter: 4
Piętro: 1
Liczba pokoi: 4
Rok budowy: 1978
Stan wykończenia: Do zamieszkania
Okna: Plastikowe
Ogrzewanie: Miejskie
Czynsz: 800 PLN
Id oferty: 7512

Opis

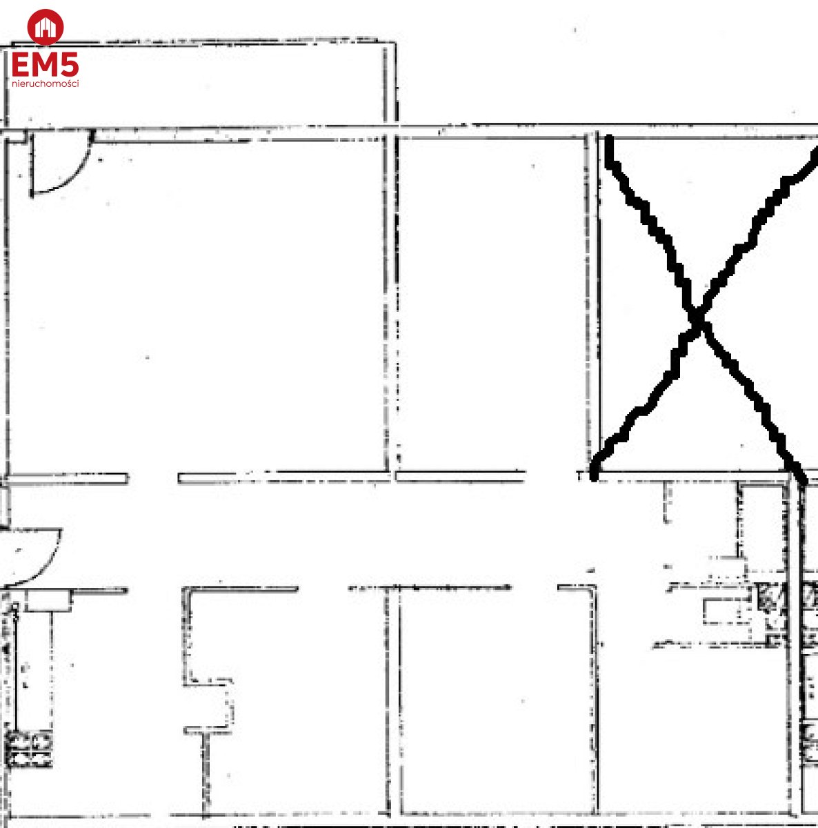
Polecam ofertę dużego, 4-pokojowego mieszkania położonego na 1 piętrze niskiego bloku przy ulicy Kalinowej na osiedlu Dziesięciny. Bardzo dobra propozycja dla dużych rodzin, a lokalizacja na samodzielnym ,doskonale zaopatrzonym we wszelkiego rodzaju usługi osiedlu jest dodatkowym atutem. Tutaj znajdziemy wszystko czego potrzebuje rodzina m.in. -szkoły, przedszkola, przychodnia, sklepy. Bardzo dobra infrastruktura zapewnia szybki dojazd do centrum-droga zajmuje 8 minut.
Na powierzchnię 84,5m2 składa się:
-przestronny salon z wyjściem na duży, słoneczny balkon
-oddzielna, jasna kuchnia
-poza salonem są 3 niezależne pokoje-sypialnie
-2 łazienki po remoncie -z wanną oraz prysznicem
Budynek z 1988r-zadbany,po termomodernizacji i z terenem zielonym dookoła budynku-idealnym na spacery i dla aktywności dzieci. Mieszkanie przeszło częściowy remont i jest możliwe do zamieszkania bez ponoszenia dodatkowych kosztów. Dla bardziej wymagających-do odświeżenia bądź remontu według własnej koncepcji. Całe wyposażenie pozostaje w mieszkaniu. Czynsz przy takim metrażu to kwota ok.800zł.Do mieszkania przynależy piwnica.
Po więcej informacji zapraszam pod nr telefonu 696 999 221.

:: Oferta wysłana z programu mediaRent (media-rent.eu) ::

Informacje dodatkowe

Balkon
Piwnica
Oddzielna kuchnia
Domofon / wideofon
Monitoring / ochrona

Inne oferty ogłoszeniodawcy

Biuro Centrum
Starszy doradca nieruchomości
Wyrażam zgodę na przetwarzanie moich danych osobowych przez firmę EM 5 dla celów związanych z działalnością pośrednictwa w obrocie nieruchomościami, jednocześnie potwierdzam, iż zostałem poinformowany o tym, iż będę posiadać dostęp do treści swoich danych do ich edycji lub usunięcia.