Apartment for sale

Białystok, Dziesięciny

669 000 PLN
7 917 PLN
84,5 m2
Sale
Market: Aftermarket
Type of building: Block
Construction material: Big blocks
Number of floors: 4
Floor: 1
Number of rooms: 4
Year of construction: 1978
Condition of property: For residence
Windows: Plastic
Heating: District
Czynsz: 800 PLN
Offer id: 7512

Description

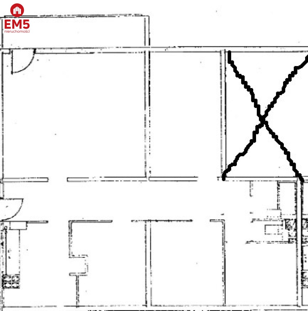
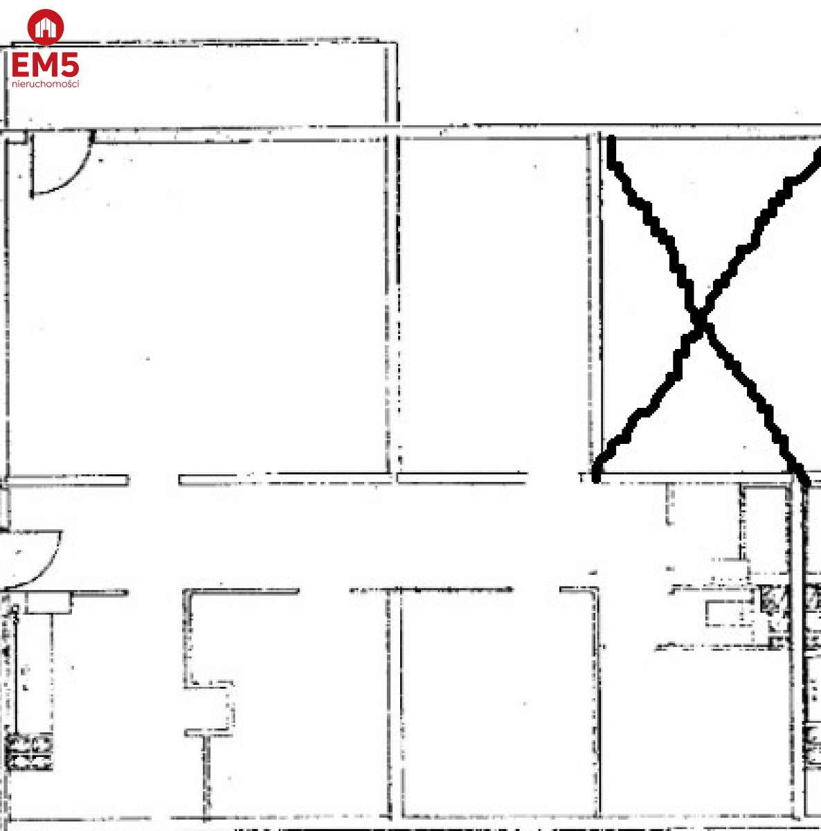
Polecam ofertę dużego, 4-pokojowego mieszkania położonego na 1 piętrze niskiego bloku przy ulicy Kalinowej na osiedlu Dziesięciny. Bardzo dobra propozycja dla dużych rodzin, a lokalizacja na samodzielnym ,doskonale zaopatrzonym we wszelkiego rodzaju usługi osiedlu jest dodatkowym atutem. Tutaj znajdziemy wszystko czego potrzebuje rodzina m.in. -szkoły, przedszkola, przychodnia, sklepy. Bardzo dobra infrastruktura zapewnia szybki dojazd do centrum-droga zajmuje 8 minut.
Na powierzchnię 84,5m2 składa się:
-przestronny salon z wyjściem na duży, słoneczny balkon
-oddzielna, jasna kuchnia
-poza salonem są 3 niezależne pokoje-sypialnie
-2 łazienki po remoncie -z wanną oraz prysznicem
Budynek z 1988r-zadbany,po termomodernizacji i z terenem zielonym dookoła budynku-idealnym na spacery i dla aktywności dzieci. Mieszkanie przeszło częściowy remont i jest możliwe do zamieszkania bez ponoszenia dodatkowych kosztów. Dla bardziej wymagających-do odświeżenia bądź remontu według własnej koncepcji. Całe wyposażenie pozostaje w mieszkaniu. Czynsz przy takim metrażu to kwota ok.800zł.Do mieszkania przynależy piwnica.
Po więcej informacji zapraszam pod nr telefonu 696 999 221.

:: Oferta wysłana z programu mediaRent (media-rent.eu) ::

Additional information

Balcony
Basement
Separate kitchen
Intercom / videophone
Monitoring / security

Other offers from the advertiser

Biuro Centrum
Starszy doradca nieruchomości
I consent to the processing of my personal data by EM 5 for purposes related to real estate brokerage activities, at the same time I confirm that I have been informed that I will have access to my data for editing or deletion.