квартира на продажу

Białystok, Dziesięciny

669 000 PLN
7 917 PLN
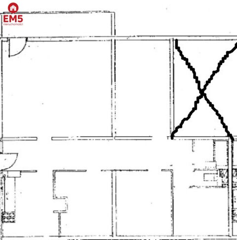
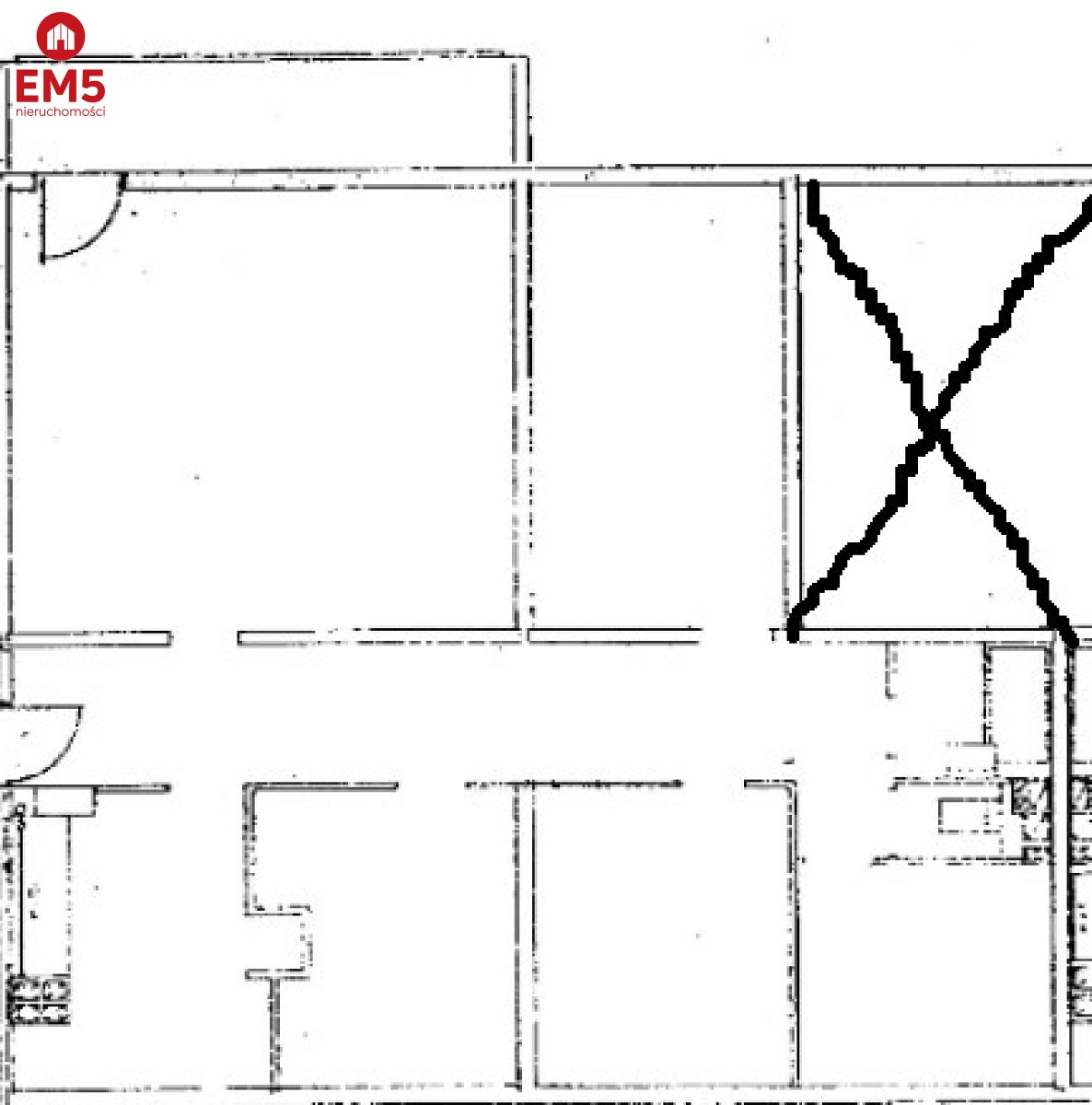
84,5 m2
продажа
рынок: вторичный рынок
тип здания: Ед. изм
строительный материал: большой блок
количество этажей: 4
Пол: 1
количество комнат: 4
год строительства: 1978
Состояние отделки: Жить
окна: Пластик
обогрев: Городской
Czynsz: 800 PLN
Идентификатор предложения.: 7512

Описание

Polecam ofertę dużego, 4-pokojowego mieszkania położonego na 1 piętrze niskiego bloku przy ulicy Kalinowej na osiedlu Dziesięciny. Bardzo dobra propozycja dla dużych rodzin, a lokalizacja na samodzielnym ,doskonale zaopatrzonym we wszelkiego rodzaju usługi osiedlu jest dodatkowym atutem. Tutaj znajdziemy wszystko czego potrzebuje rodzina m.in. -szkoły, przedszkola, przychodnia, sklepy. Bardzo dobra infrastruktura zapewnia szybki dojazd do centrum-droga zajmuje 8 minut.
Na powierzchnię 84,5m2 składa się:
-przestronny salon z wyjściem na duży, słoneczny balkon
-oddzielna, jasna kuchnia
-poza salonem są 3 niezależne pokoje-sypialnie
-2 łazienki po remoncie -z wanną oraz prysznicem
Budynek z 1988r-zadbany,po termomodernizacji i z terenem zielonym dookoła budynku-idealnym na spacery i dla aktywności dzieci. Mieszkanie przeszło częściowy remont i jest możliwe do zamieszkania bez ponoszenia dodatkowych kosztów. Dla bardziej wymagających-do odświeżenia bądź remontu według własnej koncepcji. Całe wyposażenie pozostaje w mieszkaniu. Czynsz przy takim metrażu to kwota ok.800zł.Do mieszkania przynależy piwnica.
Po więcej informacji zapraszam pod nr telefonu 696 999 221.

:: Oferta wysłana z programu mediaRent (media-rent.eu) ::

дополнительная информация

балкон
подвал
отдельная кухня
Домофон / Видео
Мониторинг / защита

Другие предложения рекламодателя

Biuro Centrum
Starszy doradca nieruchomości
Я соглашаюсь на обработку моих личных данных EM 5 в целях, связанных с брокерской деятельностью в сфере недвижимости, в то же время я подтверждаю, что мне сообщили, что у меня будет доступ к содержанию моих данных для редактирования или удаления их.