Nowy lokal 65 m2 parter, centrum

Białystok, Centrum

4 250 PLN
65 PLN
65 m2
Wynajem
Rynek: pierwotny
Piętro: 0
Rok budowy: 2025
Stan wykończenia: Do wykończenia
Umiejscowienie lokalu: W bloku
Przeznaczenie: Usługowy, Handlowy
Id Oferty: 7694

Opis

Oferta wynajmu nowego lokalu użytkowego. Rynek pierwotny, termin oddania do użytku sierpień 2025.
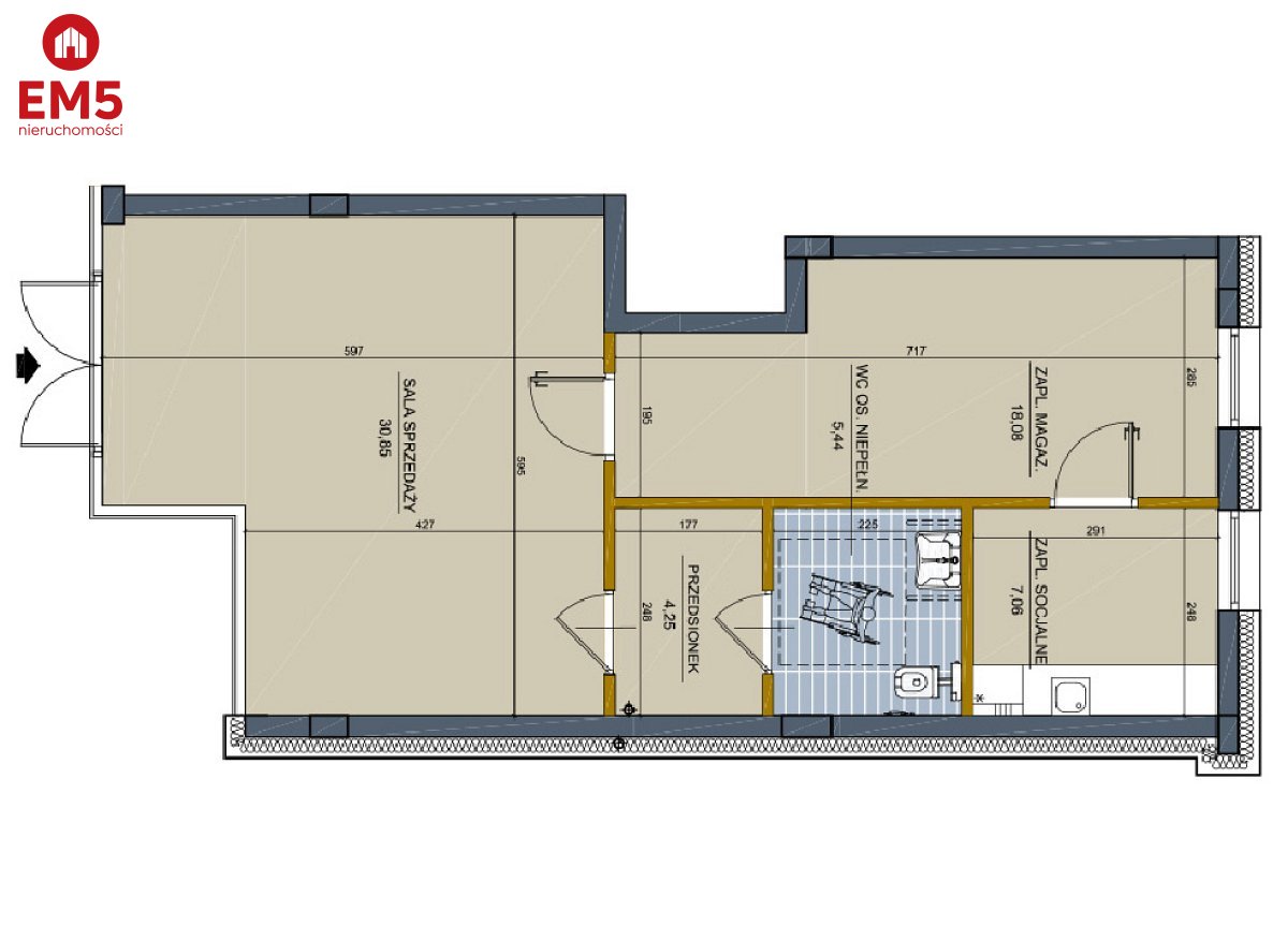
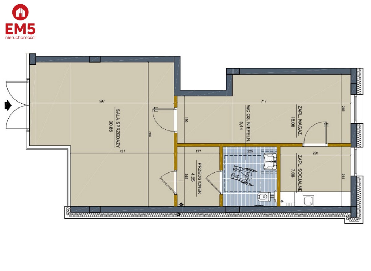
- Powierzchnia 65 m2, parter
- Sala główna 30 m2, pomieszczenie socjalne, zaplecze, toaleta, przedsionek
- Nowoczesne, funkcjonalne budownictwo
- Świetna oferta pod wszelką działalność handlową i usługową
- Bardzo dobra lokalizacja w centrum Białegostoku
- Parkingi bezpośrednio przy budynku
- Udogodnienia dla niepełnosprawnych
- Stan deweloperski do własnej aranżacji i wystroju wnętrz.
Miesięczny czynsz wynosi 4250 zł netto plus opłaty administracyjno-licznikowe Wszelkie szczegóły do indywidualnych bezpośrednich ustaleń.
Nieruchomości komercyjne EM5, Tomasz tel 886 693 886. Zapraszamy!

:: Oferta wysłana z programu mediaRent (media-rent.eu) ::

Informacje dodatkowe

Prąd
Woda
Gaz
Telefon
Kanalizacja
Witryna
Parking
Ogrzewanie

Inne oferty ogłoszeniodawcy

Biuro Centrum
Menadżer lokale komercyjne
Wyrażam zgodę na przetwarzanie moich danych osobowych przez firmę EM 5 dla celów związanych z działalnością pośrednictwa w obrocie nieruchomościami, jednocześnie potwierdzam, iż zostałem poinformowany o tym, iż będę posiadać dostęp do treści swoich danych do ich edycji lub usunięcia.