Dom w Białymstoku

Białystok, Zawady

669 000 PLN
7 433 PLN
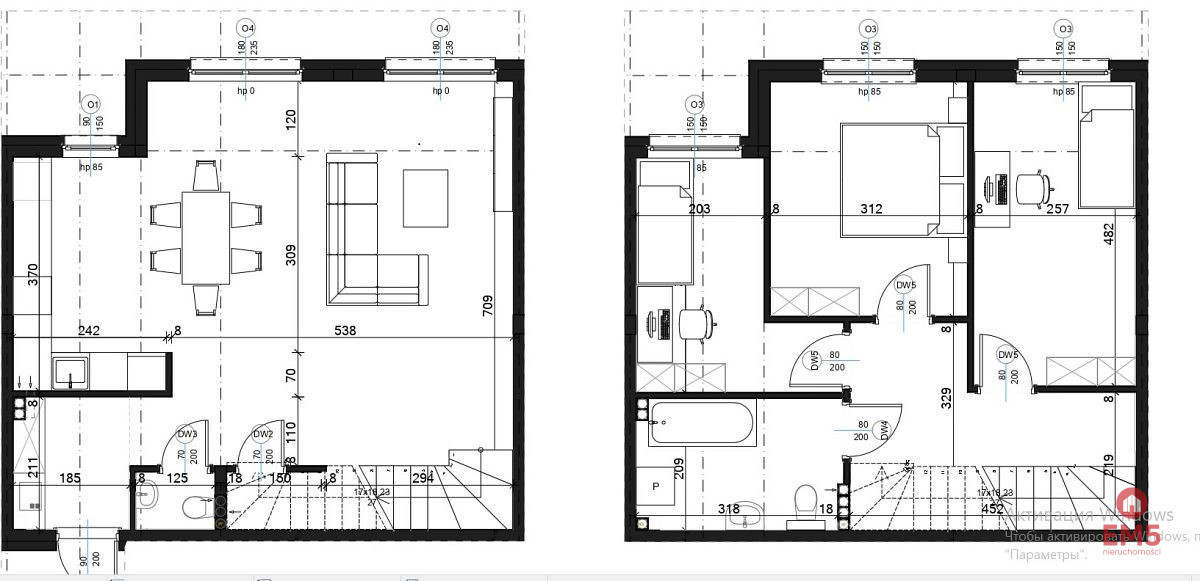
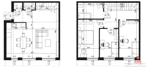
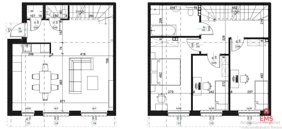
90 m2
Sprzedaż
Rynek: wtórny
Rodzaj zabudowy: Blok
Materiał budowy: Cegła
Liczba pięter: 1
Piętro: 1
Liczba pokoi: 3
Rok budowy: 2026
Stan wykończenia: Do wykończenia
Okna: Plastikowe
Ogrzewanie: Miejskie
Umeblowane: Nie
Id oferty: 125

Opis

BEZ PODATKU PCC
Prezentujemy Państwu wyjątkową ofertę sprzedaży domu o wysokim standardzie, zlokalizowanego w Białegostoku na osiedlu Zawady. To idealne miejsce dla rodzin z dziećmi, które cenią komfort i nowoczesność. Osiedle Lodowa Aleja składa się z 12 domów, których przemyślana architektura gwarantuje maksymalną funkcjonalność oraz przestronne wnętrza. Wszystkie domy zostały wykonane z najwyższej jakości materiałów wykończeniowych, co zapewnia wygodę i długowieczność. Lokalizacja osiedla to spokojna okolica otoczona zielenią, która pozwala mieszkańcom na odpoczynek i relaks na łonie natury, jednocześnie będąc w bliskiej odległości od miejskich udogodnień. W pobliżu znajdują się takie udogodnienia jak Lidl, C.H. Auchan, Selgros, stacja paliw Orlen, McDonalds, przedszkole Samorządowe nr 56, szkoła podstawowa nr 47 oraz siłownia - wszystko w zasięgu kilku minut. Doskonała komunikacja miejska to kolejny atut tej inwestycji. Linie autobusowe nr 11 i 142 BKM obsługują przystanek przy osiedlu, zapewniając łatwy dostęp do różnych części miasta. Linia nr 11 kursuje przez dworzec PKP do Stadionu Miejskiego, a linia nr 142 łączy Białystok z Osowiczami, Sielachowskimi, Jurowcami i Wasilkowem.
Standard wyposażenia domów obejmuje:
- Ogrzewanie podłogowe
- Pompę ciepła
- Okna trzyszybowe
- Przestronne zielone ogrody
- Osiedle zamknięte
- Domofon i internet
- Miejsca parkingowe przy domu
Zapraszamy do zapoznania się z tą wyjątkową ofertą i przekonania się, że Lodowa Aleja to idealne miejsce do zamieszkania dla tych, którzy cenią komfort i łatwy dostęp do wszelkich udogodnień.
KUPUJĄCY NIE PŁACI PROWIZJI

Informacje dodatkowe

Ogródek

Inne oferty ogłoszeniodawcy

Biuro Centrum
Menadżer
Wyrażam zgodę na przetwarzanie moich danych osobowych przez firmę EM 5 dla celów związanych z działalnością pośrednictwa w obrocie nieruchomościami, jednocześnie potwierdzam, iż zostałem poinformowany o tym, iż będę posiadać dostęp do treści swoich danych do ich edycji lub usunięcia.