Nowy lokal w centrum miasta.
Białystok
10 500 PLN
75 PLN
140,6 m2
Wynajem
Rynek:
wtórny
Piętro:
0
Umeblowane:
Nie
Rok budowy:
2022
Przeznaczenie:
Handlowy
Id Oferty:
372
Opis
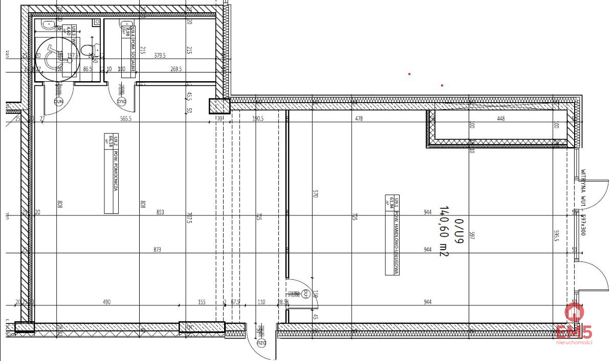
Na wynajem parterowy lokal handlowo-usługowy w stanie deweloperskim o powierzchni 140,6m2.
Lokal znajduje się w centrum miasta, wejście do lokalu znajduje się od ulicy o dużym natężeniu ruchu pieszego i samochodowego. Od frontu duże witryny. Wewnątrz lokalu sala sprzedaży, oraz 2 łazienki. Lokal jest przystosowany pod względem dostępności dla osób z niepełnosprawnością. Wszystkie media miejskie. Przypisane miejsce parkingowe. Do lokalu jest przypisana część terenu na zewnątrz, który można wynająć wnosząc opłatę do wspólnoty. Przeznaczenie lokalu handlowo-usługowe.
Czynsz wynajmu 10.500zł netto / miesiąc.
Dodatkowe opłaty- zużycie mediów.
Informacje dodatkowe
Ogrzewanie