Piękny, nowoczesny, ECO dom!
Karakule
Opis
Przedstawiamy wyjątkową ofertę sprzedaży: Oferujemy na sprzedaż nowoczesny dom o powierzchni użytkowej 157 m2, charakteryzujący się wyjątkową energooszczędnością oraz własnym źródłem zasilania w energię elektryczną (magazyn energii o pojemności 60 kWh).
Dostępne opcje zakupu: 1. Stan deweloperski: 1,6 mln zł 2. Stan obecny: 1,3 mln zł To znakomita okazja dla osób poszukujących komfortowego i ekologicznego miejsca do życia!
Idealna oferta dla rodziny ceniącej komfort i bliskość natury! Przestronny dom piętrowy o powierzchni 157 m2, położony na działce o powierzchni 908 m2 w malowniczej miejscowości Karakule, w powiecie białostockim.
Dom:
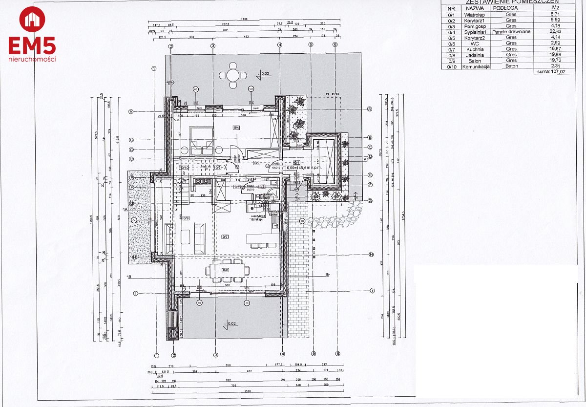
-Powierzchnia: 157 m2. Dwa piętra. Rozkład ewentualnych pomieszczeń:
-Parter: salon z aneksem kuchennym, pokój, łazienka, kotłownia. Piętro: 3 sypialnie, łazienka. Duże, słoneczne okna. Taras. Garaż
Działka: Powierzchnia: 908 m2. Kształt: prostokątny. Teren zagospodarowany. Media: prąd, woda, kanalizacja
Lokalizacja:
-Cicha i spokojna okolica. Bliskość natury. Dobry dojazd do Białegostoku
-W pobliżu sklepy, szkoła, przedszkole.
Dodatkowe informacje:
-Dom wybudowany z wysokiej jakości materiałów
-Ogrzewanie elektryczne
-Blacho dachówka
-Elewacja z drewna
-Podjazd z kostki brukowe
Możliwość negocjacji!
Zapraszamy do obejrzenia i zakupu!
:: Oferta wysłana z programu mediaRent (media-rent.eu) ::