Lokal na restaurację w centrum

Białystok, Centrum

12 135 PLN
53 PLN
227 m2
Wynajem
Rynek: wtórny
Piętro: 0
Umeblowane: Nie
Rok budowy: 1980
Przeznaczenie: Gastronomiczny
Id Oferty: 555

Opis

Większość atrakcyjnych nieruchomości w tej okolicy znika zanim trafia na portale. Dlatego pracujemy również na ofertach dostępnych tylko dla naszych klientów.

Lokal usługowy na wynajem w ścisłym centrum Białegostoku, dedykowany pod działalność gastronomiczną. Świetna lokalizacja na Twój biznes i nowe miejsce w sercu miasta. Lokal usługowy usytuowany w budynku z bezpośrednim wejściem od strony ciągu pieszych. W pobliżu Rynek Kościuszki, Ratusz, Hotel Cristal oraz popularne lokale gastronomiczne.

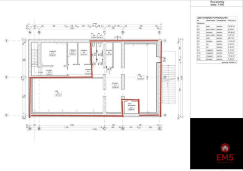
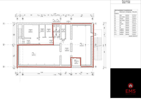
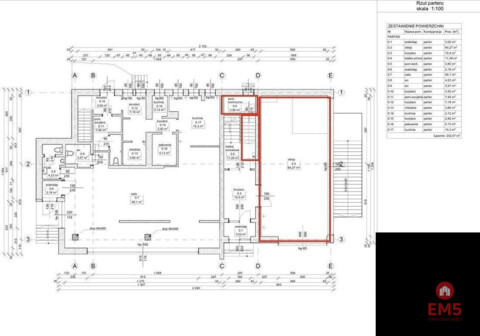
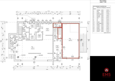
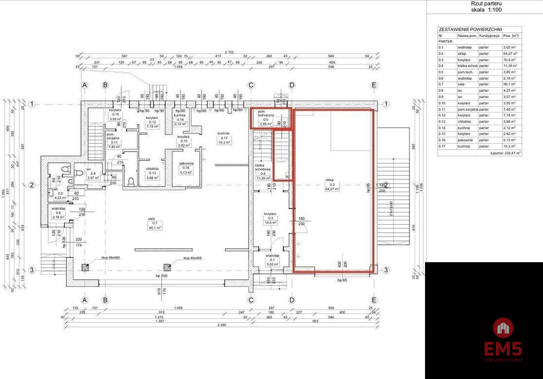
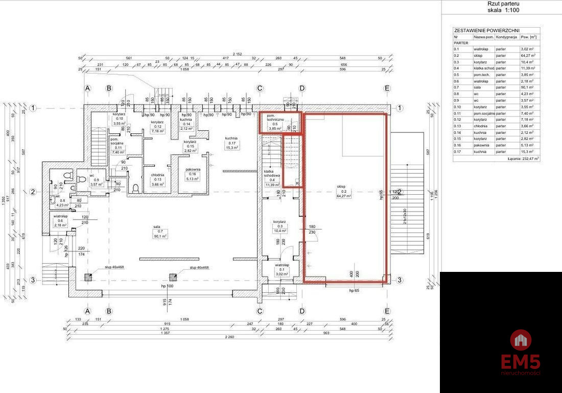
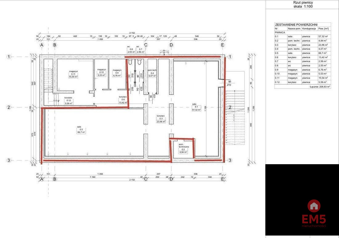
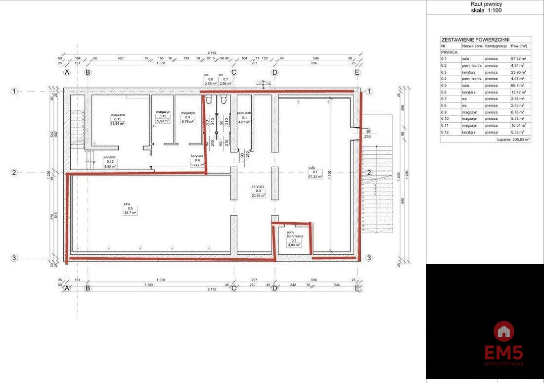
Przedmiot najmu są dwa lokale - jeden znajdujący się na parterze (ok. 70m2) , drugi w piwnicy (ok. 157m2). Dużym udogodnieniem dla Najemcy jest możliwość korzystania z ogródka (ok. 112 m2). Dokładny rozkład pomieszczeń został umieszczony na rzucie technicznym .

Wykonane prace po stronie Wynajmującego:

- nowe drzwi wejściowych do lokalu od korytarza,
- nowa witryny (okna) od ul. Mikołaja,
- nowe wyjście na taras - drzwi dwuskrzydłowe,
- przygotowanie pod windę towarową,
- nowe drzwi wyjściowe zewnętrzne z tyłu budynku,
- wymiana polbruku na podwórku.

Doprowadzony światłowód (internet) Orange, instalacja w budynku. Ogrzewanie miejskie ENEA Ciepło. Planowany jest również remont elewacji. Konieczność zaadoptowania lokalu we własnym zakresie. Możliwość partycypacji w kosztach remontu po stronie właściciela.

Miesięczny czynsz najmu 12.135zł netto plus VAT 23% oraz koszty eksploatacji - prąd, woda, ogrzewanie (według zużycia). Kaucja w wysokości 3 miesięcznego czynszu brutto.

Parking: bezpłatny parking na terenie działki budynku, strefa płatnego parkowania bezpośrednio przed budynkiem od ulicy Grochowej oraz od ulicy Mikołaja.

Załączone zdjęcia są wizualizacją wnętrz, które przedstawiają, jak lokal może wyglądać po wykończeniu. Wizualizacje te mają charakter przykładowy i mogą inspirować przyszłych najemców w procesie urządzania.

Zapraszam na prezentację

Jeśli ta nieruchomość nie spełnia wszystkich oczekiwań - skontaktuj się z nami. Pokażemy również inne oferty dopasowane do Twoich potrzeb, w tym takie, które nie są jeszcze publikowane.

Informacje dodatkowe

Parking
Ogrzewanie

Inne oferty ogłoszeniodawcy

Biuro Centrum
doradca ds. nieruchomości
Wyrażam zgodę na przetwarzanie moich danych osobowych przez firmę EM 5 dla celów związanych z działalnością pośrednictwa w obrocie nieruchomościami, jednocześnie potwierdzam, iż zostałem poinformowany o tym, iż będę posiadać dostęp do treści swoich danych do ich edycji lub usunięcia.