Nowy obiekt komercyjny Białystok

Białystok, Dojlidy Górne

66 000 PLN
36 PLN
1 850 m2
Wynajem
Rynek: wtórny
Wysokość: 0 cm
Stan wykończenia: Gotowe
Ogrzewanie: Tak
Pomieszczenie biurowe: Nie
Zaplecze socjalne: Nie
Rampa: Nie
Id oferty: 574
Dojazd: Asfaltowy

Opis

Większość atrakcyjnych nieruchomości w tej okolicy znika zanim trafia na portale. Dlatego pracujemy również na ofertach dostępnych tylko dla naszych klientów.

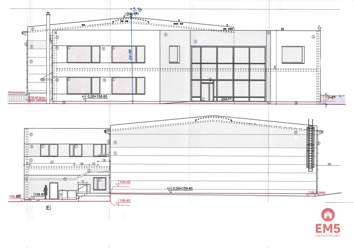
Do wynajęcia nowy obiekt biurowo - magazynowy w Białymstoku.
Nowoczesny budynek, bardzo szerokie możliwości zastosowania.
Świetne miejsce na siedzibę firmy, biura, magazyn, produkcję, obiekt sportowy, szkoleniowy itp. 

Łączna powierzchnia budynku 1850 m, powierzchnia działki 3800 m2. 

BIURA
- Łączna pow. biurowa 540 m2 
- Parter 270 m2 plus piętro 270 m2 z podziałem na 4 części 
- Dostosowanie użytkowania do kategorii ZL2 ( szkolnictwo, ośrodki medyczne, biura, itp. ) 
- Wysoki standard, wielkie przeszklenia, jasne pomieszczenia

HALA
- Powierzchnia hali  1300 m2
- Podział na 2 części po 650 m2
- Wysokość max 9,5 m , opcja antresoli z dodatkowym poziomem 1300 m2
-  Hala murowana, ocieplona, posadzka niepylna, rampa i poziom zero
- Ogrzewania gazowe własne i gaz ziemny

PLAC
- Działka 3800 m2
- Parking na 20-30 aut
- Dwie bramy wjazdowe na posesję
- Możliwość składowania towaru na placu itp. 

LOKALIZACJA
- Białystok obrzeża, bardzo dobra komunikacja z szybkim dojazdem, przystanek. 

Trwają ostatnie prace wykończeniowe. Cena wynajmu 35 zł / m2 netto.
Wszelkie szczegóły do indywidualnych ustaleń. 
Nowa, duża nieruchomość komercyjna w Białymstoku. Zapraszamy 
Em5 Nieruchomości , Tomasz tel 886 693 886. 



Jeśli ta nieruchomość nie spełnia wszystkich oczekiwań - skontaktuj się z nami. Pokażemy również inne oferty dopasowane do Twoich potrzeb, w tym takie, które nie są jeszcze publikowane.

Informacje dodatkowe

Woda
Prąd
Kanalizacja
Telefon
Gaz
Internet
Szambo
Domofon / wideofon
Monitoring / ochrona
System alarmowy

Inne oferty ogłoszeniodawcy

Biuro Centrum
Menadżer lokale komercyjne
Wyrażam zgodę na przetwarzanie moich danych osobowych przez firmę EM 5 dla celów związanych z działalnością pośrednictwa w obrocie nieruchomościami, jednocześnie potwierdzam, iż zostałem poinformowany o tym, iż będę posiadać dostęp do treści swoich danych do ich edycji lub usunięcia.