Lokal handlowo-usługowy

Białystok, Piaski

1 800 PLN
60 PLN
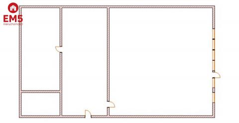
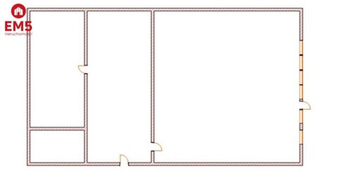
30 m2
Wynajem
Rynek: wtórny
Piętro: 0
Umeblowane: Nie
Rok budowy: 1980
Stan wykończenia: Gotowy
Umiejscowienie lokalu: W kamienicy
Przeznaczenie: Usługowy, Handlowy
Id Oferty: 6159

Opis

Prezentujemy Państwu dobrą okazję wynajmu lokalu użytkowego w sercu Białegostoku. Przestronny obiekt o powierzchni 30 m2 oferuje 1 funkcjonalne pomieszczenie ze szklaną witryną, idealne na cele handlowo-usługowe. Lokal znajduje się na parterze w piętrowym budynku, co gwarantuje komfort użytkowania. Dzięki centralnej lokalizacji, wszelkie udogodnienia miejskie są na wyciągnięcie ręki, co czyni codzienną działalność łatwiejszą i przyjemniejszą. Jest to doskonała propozycja przedsiębiorców, które prowadzą działalność gospodarczą i potrzebują dobrze zlokalizowanego miejsca do pracy. Dodatkowo, oferujemy długoterminowy wynajem, co pozwoli na stabilność i bezpieczeństwo w planowaniu przyszłości.
Nie przegapcie tej niepowtarzalnej okazji - ta oferta to idealne rozwiązanie dla przedsiębiorców i firm szukających funkcjonalnego i dobrze zlokalizowanego miejsca do prowadzenia działalności lub pracy.

:: Oferta wysłana z programu mediaRent (media-rent.eu) ::

Informacje dodatkowe

Prąd
Woda
Kanalizacja
Dojazd asfaltowy
Ogrzewanie

Inne oferty ogłoszeniodawcy

Biuro Centrum
Menadżer
Wyrażam zgodę na przetwarzanie moich danych osobowych przez firmę EM 5 dla celów związanych z działalnością pośrednictwa w obrocie nieruchomościami, jednocześnie potwierdzam, iż zostałem poinformowany o tym, iż będę posiadać dostęp do treści swoich danych do ich edycji lub usunięcia.