









Dom 144 m2 stan surowy zamknięty
Białystok, Sochonie
Opis
Oferujemy Państwu dom na sprzedaż - kilka minut jazdy od Białegostoku. Dom w stanie surowym zamkniętym na nowo budowanym osiedlu domów jednorodzinnych, zlokalizowany w gminie Wasilków w pobliżu miejscowości Sochonie. Budynek zbudowany przez dewelopera (nabywca nie płaci podatku PCC) w technologii tradycyjnej, bezpośrednio przy drodze gruntowej, w zielonym otoczeniu (łąki i las). Dojazd do osiedla drogą szutrową ok. 400 m od drogi asfaltowej. Bardzo cicha i spokojna okolica.
- Rodzaj domu: wolnostojący.
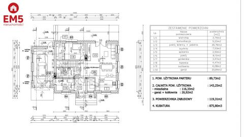
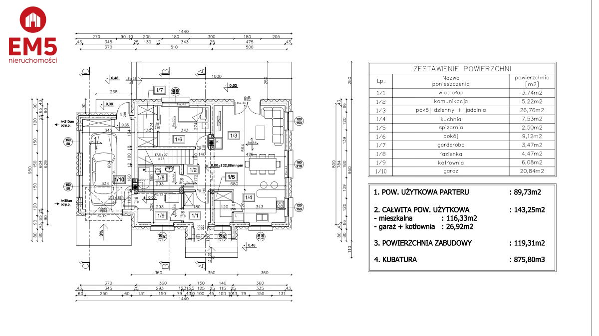
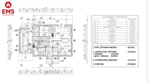
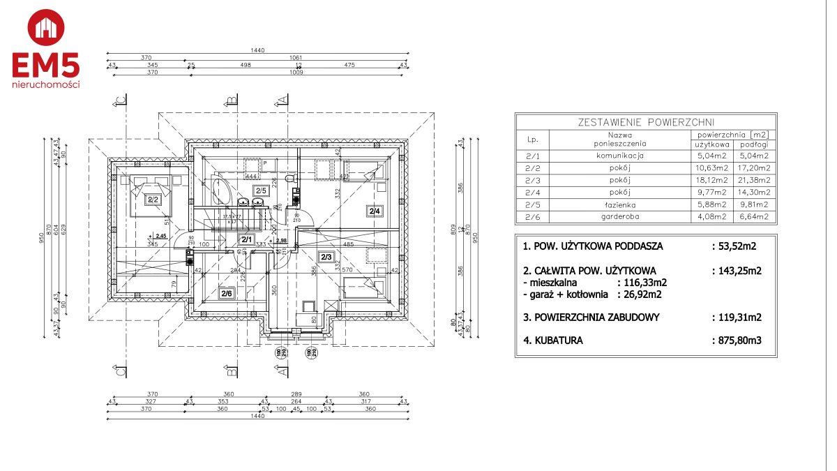
- Powierzchnia domu: 144 m2.
- Nieruchomość położona jest na działce o powierzchni 895 m2.
- Wymiary działki 30 x 30 mb. Działka posiada kształt kwadratu.
- Budynek 2 piętrowy wybudowany w roku 2024. Standard wykończenia: surowy zamknięty.
- Parter: garaż, przedsionek, kotłownia, otwarty salon z aneksem kuchennym i wyjściem na duży taras, mała spiżarnia, łazienka.
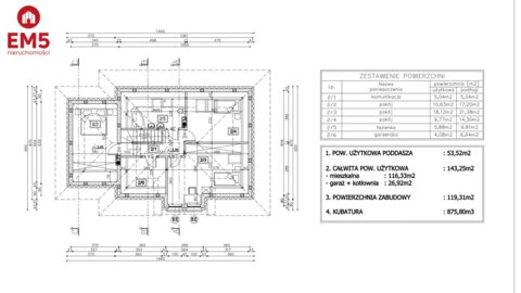
- Piętro: 4 pokoje o różnej wielkości, łazienka.
- media: prąd, woda, kanalizacja, światłowód
promocyjna cena : 639 000,00
:: Oferta wysłana z programu mediaRent (media-rent.eu) ::