Mieszkanie 3 pokojowe Rutka-Tartak

Rutka-Tartak

250 000 PLN
4 132 PLN
60,5 m2
Sprzedaż
Rynek: wtórny
Rodzaj zabudowy: Blok
Materiał budowy: Cegła
Liczba pięter: 2
Piętro: 1
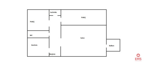
Liczba pokoi: 3
Rok budowy: 1985
Stan wykończenia: Do zamieszkania
Okna: Plastikowe
Ogrzewanie: Miejskie
Umeblowane: Tak
Id oferty: 570

Opis

Większość atrakcyjnych nieruchomości w tej okolicy znika zanim trafia na portale. Dlatego pracujemy również na ofertach dostępnych tylko dla naszych klientów.

Przedstawiam ofertę sprzedaży jasnego i przytulnego mieszkania 3 - pokojowego w bloku w Rutce-Tartak.
Niepowtarzalna oferta dla osób, które szukają komfortu, przestrzeni i spokoju w jednym miejscu!
- powierzchnia 60,50 m²
- piętro 1 z 2
W skład mieszkania wchodzą:
- 3 słoneczne, ustawne pokoje
- przestronna kuchnia z dodatkowym pomieszczeniem (spiżarnia/garderoba) bardzo praktyczne rozwiązanie
- oddzielna łazienka
- osobne WC
- balkon
- duża piwnica (11,6m2) czyli dużo miejsca do przechowywania
W cenie mieszkania:
- 2 wygodne miejsca postojowe
- prywatna działka - idealna na ogródek, relaks, grilla czy bezpieczne miejsce zabaw dla dzieci
Pozostałe informacje:
- ogrzewanie miejskie (kotłownia w dalszej części bloku na olej)
- brak osób zameldowanych w mieszkaniu
- okna plastikowe, na podłogach terakota, panele oraz gres
- duża szafa z lustrami w zabudowie usytuowana w salonie
- miesięczne opłaty na poziomie ok. 780 zł
Mieszkanie zadbane, gotowe do zamieszkania lub aranżacji według własnego gustu, dostępne od zaraz.
Spokojna okolica, z dala od miejskiego zgiełku, a jednocześnie w pobliżu najważniejszej infrastruktury. Idealne dla rodziny, pary lub osób ceniących wygodę i funkcjonalny układ pomieszczeń.
To miejsce, w którym naprawdę można poczuć się jak u siebie.
Zapraszamy do obejrzenia mieszkania na żywo!
Oferta dostępna tylko w naszym biurze.

Jeśli ta nieruchomość nie spełnia wszystkich oczekiwań - skontaktuj się z nami. Pokażemy również inne oferty dopasowane do Twoich potrzeb, w tym takie, które nie są jeszcze publikowane.

Informacje dodatkowe

Balkon
Piwnica
Ogródek
Domofon / wideofon

Inne oferty ogłoszeniodawcy

Biuro Suwałki
doradca ds. nieruchomości
Wyrażam zgodę na przetwarzanie moich danych osobowych przez firmę EM 5 dla celów związanych z działalnością pośrednictwa w obrocie nieruchomościami, jednocześnie potwierdzam, iż zostałem poinformowany o tym, iż będę posiadać dostęp do treści swoich danych do ich edycji lub usunięcia.